
Конструкция самодельного прицепа, вмещает 6 мешков картофеля, плюс вес водителя — итого около 400 килограммов.
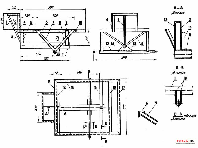
Рис.1. Конструкция самодельного прицепа для мотоблока:
1- кронштейн навесных орудий мотоблока «Электроник», 2 - консоль, 3 - водило, 4 - подножка (доска s20), 5 - сиденье водителя (доска s20), 6 - рама, 7 - кузов (доска s20), 8 - балка опорная (брус 50x50, 3 шт.), 9 - болт М8, 10 - кольцо упорное (труба 58x4), 11 - колесо (от мотоколяски СЗД, 2 шт.).
Рама изготовлена из набора стальных элементов: уголков, прутка, труб круглого и прямоугольного сечения. Они сварены в конструкцию, некоторая замысловатость которой обусловлена работой тележки на местности, изобилующей неровностями рельефа, россыпью камней и валунов: эксплуатационные нагрузки здесь очень велики.
В качестве колесной оси применен стальной стержень диаметром 30 мм, соединенный уголковыми опорами и косынками с лонжеронами и корпусом продольного шарнира при помощи электросварки. Длина стержня выбрана такой, чтобы колеса не выступали за обводы кузова. ![]()
Рис.2. Водило:
1 - корпус поворотного узла, 2 - дышло (труба 49x3, L1820), 3 - рамка подножки (уголок 25x25x4), 4 - упор (труба 58x4), 5 - ребро жесткости (s4), 6 - накладка (полоса 25x4).
Под стать мощной раме и крепкий кузов, сколоченный из досок 20-мм толщины и усиленный
на углах металлическими накладками. К раме он крепится посредством болтов и трех мощных опорных балок из бруса 50x50 мм. Нагружается кузов, как и любые одноосевые тележки - центр тяжести груза должен располагаться ближе к переднему борту и не заходить за ось вращения колес.
Поскольку тележка предназначена в основном для перевозки мешков с картофелем, кузов сделан с не откидывающимися бортами. Для перемещения же сыпучих грузов тележка используется редко. ![]()
Рис.3. Рама самодельного прицепа к мотоблоку:
1 - раскос (уголок 21x21x3), 2 - рамка сиденья (уголок 21x21x3), 3 - стояк (труба 50x25x4), 4 - стойки сиденья (уголок 40x40x4), 5,14 - подкосы передние (труба 50x25), 6, 15 - лонжероны продольные (уголок 40x40x4), 7, 8 - опоры колесной оси правые (уголок 32x32x4), 9,16 - подкосы задние (труба 50x25), 10 - поперечина усиливающая (уголок 40x40x4), 11 - корпус продольного шарнира (труба 58x4), 12 - ось колесная (пруток диаметром 30), 13,17 - лонжероны поперечные (уголок 40x40x4), 18 - косынки (s4).
Колеса позаимствованы у давнего популярного объекта самодельщиков - мотоколяски СЗД: использованы передние, со ступицами в сборе. При этом концы стержня - колесной оси обточены под посадочные диаметры штатных подшипников ступиц. Многолетняя практика эксплуатации тележки показала, что эти колеса - самые подходящие.
С мотоблоком тележка соединяется с помощью консоли, верхняя часть которой повторяет обводы держака того же окучника, поскольку вставляется в штатный кронштейн навесных орудий, а нижняя представляет собой ось, вокруг которой в двух радиально-упорных подшипниках вращается поворотный узел водила. Пространство между подшипниками заполнено консистентной смазкой и прикрыто пыльниками. ![]()
Рис.4. Поворотный узел водила:
1 - консоль, 2 - пыльники, 3,6 - подшипники 36206, 4 - корпус, 5 - втулка распорная, 7 - втулка дистанционная, 8 - шайба, 9 - гайка М20х2,5, 10 - масленка, 11 - дышло.
С рамой тележки водило соединено шарнирно - дышло вставлено в трубчатый корпус продольного шарнира, на конец его надето и зафиксировано болтом М8 упорное кольцо. Такое соединение позволяет колесам тележки
быть независимыми от положения колес мотоблока на неровностях дороги.
Водитель управляет связкой мотоблок-тележка, располагаясь на деревянном сиденье впереди кузова. Руками он держится за рычаги управления, а ногами опирается на деревянную подножку, прикрепленную к специальной рамке на дышле водила.
В небольшой публикации, конечно, невозможно представить все подробности конструкции. На рисунках, например, не показаны такие мелкие детали, как бортовые петли с лямками для крепления перевозимого груза. Не изображена мягкая подушка на сиденье, без которой любая поездка была бы для водителя испытанием. Думается, что этими и другими элементами самодеятельный конструктор оснастит свое изделие самостоятельно.
В.А. Свербель
МК 03 1998