
C наступлением зимы на многих российских просторах единственным транспортом становится гусеничный вездеход или, в лучшем случае, мотонарты. Они очень удобны, но, к сожалению, отечественные "Бураны" сегодня стали редкостью, а зарубежные "Ямахи" слишком дороги, особенно для подростков. Так почему бы не вспомнить о возможностях самодельного конструктора с универсальной моторной установкой "УМУ", который позволит сделать своими руками настоящий снегоход.
Наш снегоход (см. рис. 1) состоит из двух частей. Первая - ведомая - опирается на полозья в виде лыж с сиденьем для водителя. Вторая - ведущая - состоит из моторной установки "УМУ" с колесным приводом. Обе части снегохода соединены вертикальным шарниром, что позволяет им принимать различные угловые положения относительно друг друга.
Ведомая часть включает в себя несущую раму с сиденьем водителя и рычагами управления. Она шарнирно опирается на скобы полозьев. С поворотной стойкой несущая рама скреплена жестко.
Полозья представляют собой пару широких деревянных лыж, параллельно соединенных между собой. В средней части каждой лыжи установлены скобы шарнирных соединений.
В конструкции рамы предусмотрены места крепления съемной платформы для ног, оснащенной тормозными педалями.
Рычаги управления снегоходом соединяются единой втулкой и фиксируются винтами под сиденьем водителя.
На рукоятки рычагов надеты резиновые наконечники. Правая рукоятка снабжена тросовым механизмом регулировки газа от серийного мотоцикла.
Рулевые тяги придется изготовить самим. Подойдут тонкостенные стальные трубки диаметром 16...18 мм. На их концах необходимо установить соединительные шарниры, способные работать в двух угловых плоскостях.
Во второй части снегохода установлен ведущий мост с самодельными колесами низкого давления. Лучшее решение - применить пневмокамеры от автомобилей, в накачанном состоянии их наружный диаметр примерно равен 80 мм.
Изготавливать несущую раму (см. рис. 2) ведомой части снегохода лучше всего из стальной тонкостенной трубы диаметром 40 мм. Согнуть трубу такого диаметра без специального приспособления сложно, поэтому поворотную стойку рамы в нижней ее части придется на сварке собрать из двух прямых кусков. Если все же есть возможность качественно согнуть трубу, не нарушив ее сечение в месте изгиба, то советуем с этой операции начинать изготовление ведомой рамы.
Рис. 1. Общий вид снегохода:
1 - лыжная пара, 2 - педаль тормоза, 3 - платформа, 4 - рычаг управления, 5 - ручка газа, 6 - несущая рама, 7 - шарнир поворота, 8 - "УМУ", 9 - рулевые тяги, 10 - распорка
Рис. 2. Конструкция несущей рамы:
1 - поворотная стойка, 2 - опорная балка, 3 - втулка оси рычагов, А - размеры центральной части, Б - общий вид несущей рамы
Ножовкой по металлу нарежьте остальные трубчатые заготовки. Места соединений опилите полукруглым напильником. Положите поворотную стойку с загнутым (или приваренным) концом на ровную горизонтальную поверхность (бетонный пол) и прихватите газо- или электросваркой сопрягаемые детали. Убедитесь, что все прихваченные детали рамы находятся строго в одной плоскости. Для этого простучите молотком трубу по всей длине. Только после этой операции соедините сваркой все детали между собой.
Следующий шаг - изготовление фланцев и обкладок опорной балки. Один из готовых фланцев приварите к торцу опорной балки, соблюдая перпендикулярность к оси трубы. Наденьте две обкладки на балку и приварите второй фланец к противоположному торцу, соблюдая соосность отверстий в обоих фланцах. Для установки опорной балки на несущую раму прихватите сваркой обкладки с двух ее сторон, как показано на рисунке 2. Убедитесь, что балка относительно плоскости рамы прихвачена перпендикулярно. После этого приварите обкладки. Убедитесь, что балка свободно перемещается вдоль своей оси и одновременно вращается в обкладках. Передвигая балку вдоль оси, подберите такое положение, чтобы расстояние от обкладок до фланцев было одинаковым как слева, так и справа. Отметьте это положение рисками.
Теперь согласно рисунку 2 выставите угол фланца так, чтобы свободные отверстия смотрели строго вниз. Еще раз проверьте положение рисок и прихватите сваркой трубу балки к обкладке. Проведите окончательную регулировку и только после этого приварите шов начисто.
Для установки втулки оси рычагов подробного описания не требуется. Куда сложнее установить кронштейны поворотной оси, к этой работе отнеситесь предельно внимательно, ведь здесь требуется выдержать максимальную точность в соосности отверстий между собой, а также расположении плоскости центров этих отверстий с центром поворотной стойки и осью среднего отрезка рамы.
Сборку рамы завершает присоединение сваркой кронштейнов сиденья и косынок жесткости.
Для лыжной пары (см. рис. 3) вам потребуется сделать две одинаковые распорки, два одинаковых кронштейна с осями и собственно пару лыж.
Рис. 3. Общий вид лыжной пары
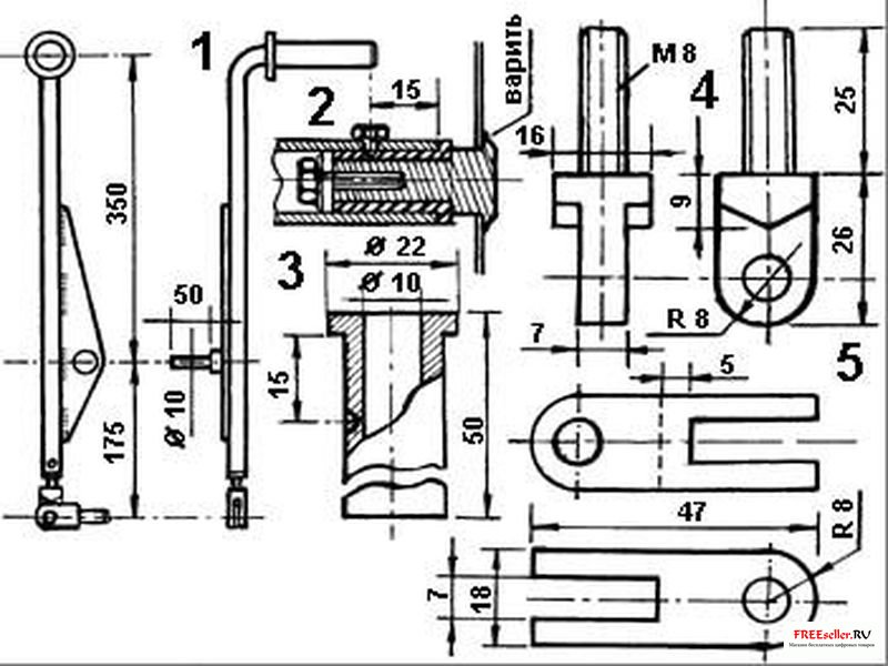
Рис. 4. Детали управления:
1 - левый рычаг управления, 2 - крепление рычага управления, 3 - втулка рычага, 4 - концевые детали шарнира (8 шт.), 5 - центральные детали шарнира (4 шт.)
Что касается распорок, то их придется вырезать из отрезков трубы диаметром 22 мм. К ним приварите уголки из листовой стали толщиной 3 мм. Кронштейны придется согнуть из той же стали, а оси - выточить на токарном станке.
Лыжи лучше всего изготовить самостоятельно из листов 3-мм фанеры в 9 или 10 слоев. Лучший клей - эпоксидная смола. Сушку проводите на оправке с применением мощных струбцин. Подробнее об этой операции можете почитать в "Левше" № 12 за 1997 г. (статья "По снегу, как по асфальту").
Рычаги и тяги управления (см. рис. 4) просты по конструкции, даже несмотря на то, что в процессе их изготовления потребуются сварочные и токарные работы. Большое внимание уделите точности выполнения шарнирных тяг. Все люфты устраните по возможности при сборке.
Изготовление платформы для ног, педалей тормоза и сиденья тоже подробно описывать не будем - их конструкция понятна из рисунка 5.
Для соединения ведомой части снегохода с ведущей необходима поворотная ось. Сделайте ее из отрезка стальной трубы диаметром 22 мм и длиной 140 мм. С одного конца приварите квадратный фланец из листовой стали, а на другом конце просверлите отверстие для стопора торцевой шайбы. Точные размеры оси, фланца и торцевой шайбы вы найдете на стр. 10 в "Левше" № 4 за этот год - нижняя часть универсального руля.
Кстати, из этого же номера журнала используйте конструкцию ведущего моста, взяв ее за основу в своем снегоходе, заменив лишь фланцы, показанные на рисунке 6.
Рис. 5. Устройство платформы для ног:
Рис. 6. Колесный фланец
Для окончательной сборки снегохода придется немного доработать кронштейн подножки микромотоцикла (см. "Левшу" № 9 за этот год), который используется для крепления поворотных тяг снегохода. Доработка кронштейна показана у нас на рисунке 7.
Рис. 7. Соединение поворотных тяг:
1 - поворотная тяга, 2 - шарнир, 3 - стопорное отверстие М-6 (2 шт.), 4 - косынка жесткости.
И последнее. Если в процессе изготовления снегохода у вас появятся интересные решения, улучшающие конструкцию или упрощающие технологию, смело принимайтесь за их реализацию.