Самодельная бетономешалка

  • Опубликовано: 20 апреля 2010

Бетономешалка своими руками


Конструкция самодельной бетономешалки вполне доступна для самостоятельного изготовления. Для изготовления бетономешалки требуются довольно распространенные узлы и детали, в т.ч. других деталей.


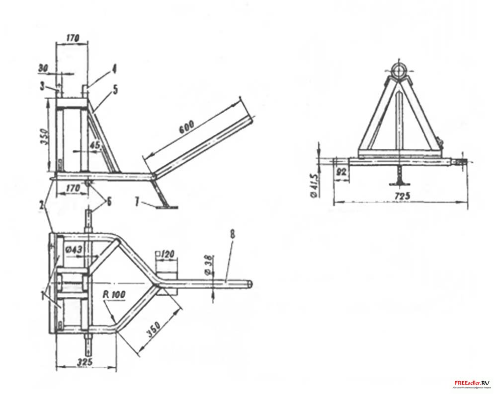
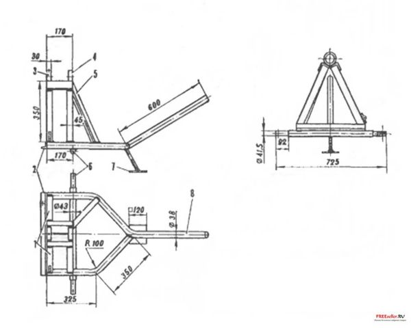
Бетономешалка (рис. 1) состоит из рамы, поворотного устройства, электромотора, редуктора, бадьи с осью и заземления.

Бетономешалка своими руками. Чертежи


Рис. 1. Общий вид самодельной бетономешалки:
1 - рама, 2 - штырь фиксирования поворотного устройства, 3 - поворотное устройство, 4 - электромотор, 5 - редуктор, 6 - ведущая шестерня, 7 - бадья, 8 - колесо, 9 - штырь колеса, 10 - заземление, 11 - ограничительная цепочка, 12 - крепление двигателя, 13 - ведущий шкив, 14 - ремень, 15 - ведомый шкив, 16 - болт натяга.


Рама (рис. 2) состоит из дюймовых труб и уголков. Снизу к ней прикреплена ось колес - сплошной стальной стержень 0 43 мм, концы которого обточены до диаметром 41,5 мм. Сюда надеваются, к примеру, изношенные катки гусеничного трактора. От спадания колеса удерживаются проволочными штырями диаметром 6 мм. Спереди под основанием водила находится пята - третья точка опоры бетономешалки. Венчает треугольник рамы М-образная конструкция - ложе для поворотного устройства. По его краям два кольца-подшипника с внутренним диаметром 62 мм. Последние, а также детали рамы, ось и пята крепятся сваркой.


Бетономешалка своими руками. Чертежи рамы


Рис. 2. Рама самодельной бетономешалки:
1 - передние подкосы, 2 - лицевой уголок, 3 - переднее кольцо-подшипник, 4 -заднее кольцо-подшипник, 5 - задний подкос, 6 - ось колес, 7 - пята, 8 - ручка водила.


На переднем левом уголке-подкосе приварена петля крепления ограничительной цепочки (о ее назначении ниже), а в лицевом горизонтальном уголке просверлено отверстие для подсоединения провода, идущего от заземления.

Поворотное устройство (рис. 3) предназначено для опрокидывания бадьи и слива бетона. Собрано оно из двух труб диаметром 60 мм, корпуса подшипников, двух уголков - ребер жесткости, двух упоров, опрокидывающей ручки и заглушки. Соединяются все названные детали сваркой. Задний упор, ручка и заглушка привариваются после того, как поворотное устройство будет установлено в кольца-подшипники рамы. Тогда оно сможет проворачиваться в кольцах, уже не выдвигаясь из них. Фиксирует поворотное устройство в рабочем положении проволочный штырь диаметром 8 мм. Для него в переднем кольце просверливается (совместно с трубой поворотного устройства) вертикальное диаметральное отверстие.

Бетономешалка своими руками. Чертежи поворотное устройство.


Рис. 3. Поворотное устройство самодельной бетономешалки: 
1 - трубчатое основание, 2 - корпус подшипников, 3 - ребро жесткости, 4 - упоры, 5 - ручка, 6 - заглушка, 7 - вал бадьи, 8 - профилированные шайбы.


К концу опрокидывающей ручки также приварена петля, соединенная с другим концом ограничительной цепочки.
Корпус подшипников вытачивается из толстостенной стальной трубы. В нем располагаются шарикоподшипники № 206 и №207, удерживаемые пружинными упорными кольцами, и вал бадьи, выточенный из поковки. В дне бадьи проделывается отверстие, куда этот вал вставляется и крепится с помощью двух профилированных шайб и гайки. В подшипниках он удерживается также гайкой, навинчиваемой на хвостовик.

Бадья (рис. 4) сварена из пяти элементов: основания (можно применить подходящий вогнутый диск), двух конических поверхностей из 1,5 мм стального листа, кольца-обечайки, усиливающего вход, и зубчатого венца (от маховика двигателя автомобиля ГАЗ-51). Внутри бадьи приклепаны три лопасти, перемешивающие бетон. Они изготовлены из уголков, изогнутых соответственно внутренним обводам бадьи.

Бетономешалка своими руками. Чертежи поворотное устройства.


Рис. 4. Бадья самодельной бетономешалки:
1 - выпуклое днище, 2 - зубчатый венец, 3 - тело бадьи, 4 - кольцо-обечайка, 5 - лопасть, 6 - отверстие для вала. 


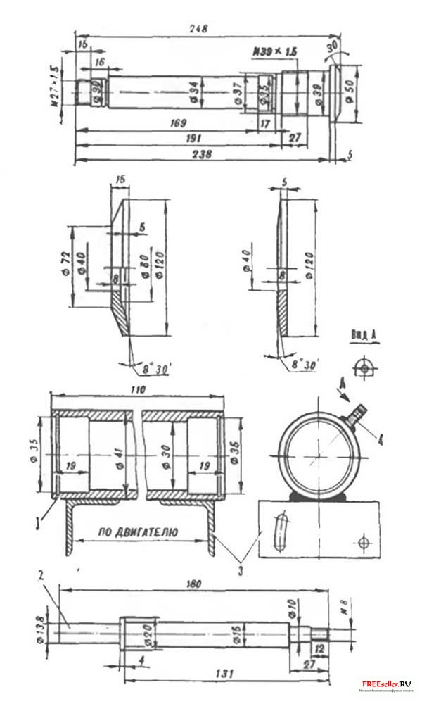
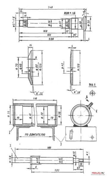
Несколько слов о двигателе и редукторе. В конструкции бетономешалки применены электродвигатель, шкивы, клиновидный ремень и кнопочный выключатель без защитного теплового реле от пришедшей в негодность стиральной машины (см. рис. 1). Мотор прикреплен к поворотному устройству по месту стальными полосами (одним концом полосы привинчены к мотору, а. другим приварены к трубам поворотного устройства).

С другой стороны электродвигателя в четырех точках (по две на каждом из его торцов) зафиксирован корпус промежуточного валика - основной детали редуктора (рис 5). Причем отверстия в уголках крепления разные: два цилиндрических, а два дугообразных, с их помощью регулируется натяжение клиновидного ремня на шкивах мотора и промежуточного валика. Сам валик вращается в двух подшипниках N9 202, сидящих в корпусе, а другой его конец снабжен шестерней от стартера ГАЗ-51.

Бетономешалка своими руками. Чертежи редуктора.


Рис. 5. Редуктор самодельной бетономешалки:
1 - корпус, 2 - промежуточный валик 3 - уголки крепления 4 - ушко.


Корпус имеет ушко, в которое вставлен болт натяга: передвигая ушко гайками по болту, можно усиливать или ослаблять прижим стартерной шестерни к зубчатому венцу бадьи. Другой конец болта приварен к корпусу подшипников поворотного устройства

Готовую к работе бетономешалку загружают через вход необходимыми компонентами: песком, цементом, водой, другими добавками и включают электродвигатель. При вращении от трения перемешиваемой массы о стенки бадьи возможно I образование статического электричества, которое будет отводиться в землю с помощью переносного заземления - металлического кола с проводником, подсоединенным к раме.


Рис. 6 . Внешний вид самодельной бетономешалки.

Когда бетон готов, мотор выключают и, дождавшись остановки бадьи, опрокидывают ее за ручку. От чрезмерного опрокидывания оберегает ограничительная цепочка.

Т. Мякшицкий

Похожие самоделки

Имя:*
E-Mail:


Песочница RSSРеклама на сайтеFreeseller.ru - Полезные самоделки
Copyright © 2008-2025