Маятниковая пила своими руками

  • Опубликовано: 9 января 2009

]

 

Изготавливаем маятниковую пилу своими руками.


Арсенал металлорежущих станков домашней мастерской полезно пополнить маятниковой пилой. Закрепить ее можно на верстаке, рядом со слесарными тисками, в которых зажимается обрабатываемая заготовка. Рабочий инструмент пилы - абразивный диск. Ему «по зубам» закаленные до любой твердости стальные прутки, уголки, трубы, листы и даже метлахская плитка, фарфор и стекло, причем поверхность среза получается достаточно четкой. Если же заменить диск пилой с мелким зубом, то можно распиливать дерево, фанеру или пластмассу, алмазный же диск даст возможность обрабатывать камни.


Для закрепления заготовки удобно пользоваться поворотными тисками, в этом случае резку можно производить под углом, что очень удобно при заготовке деталей под сварку.

Различные приспособления к пиле позволяют делать неглубокие пропилы и пазы и даже превратить ее в обычную «циркулярку».

Для такой пилы вам потребуется однофазный электродвигатель мощностью 340 Вт (от электроточила) или трехфазный типа АОЛ 21-2 мощностью 400 Вт с частотой вращения 2800 об/мин. Передача вращения на шпиндель станка - клиновым ремнем типа A-I018 от автомобиля ГАЗ-24.

 

 

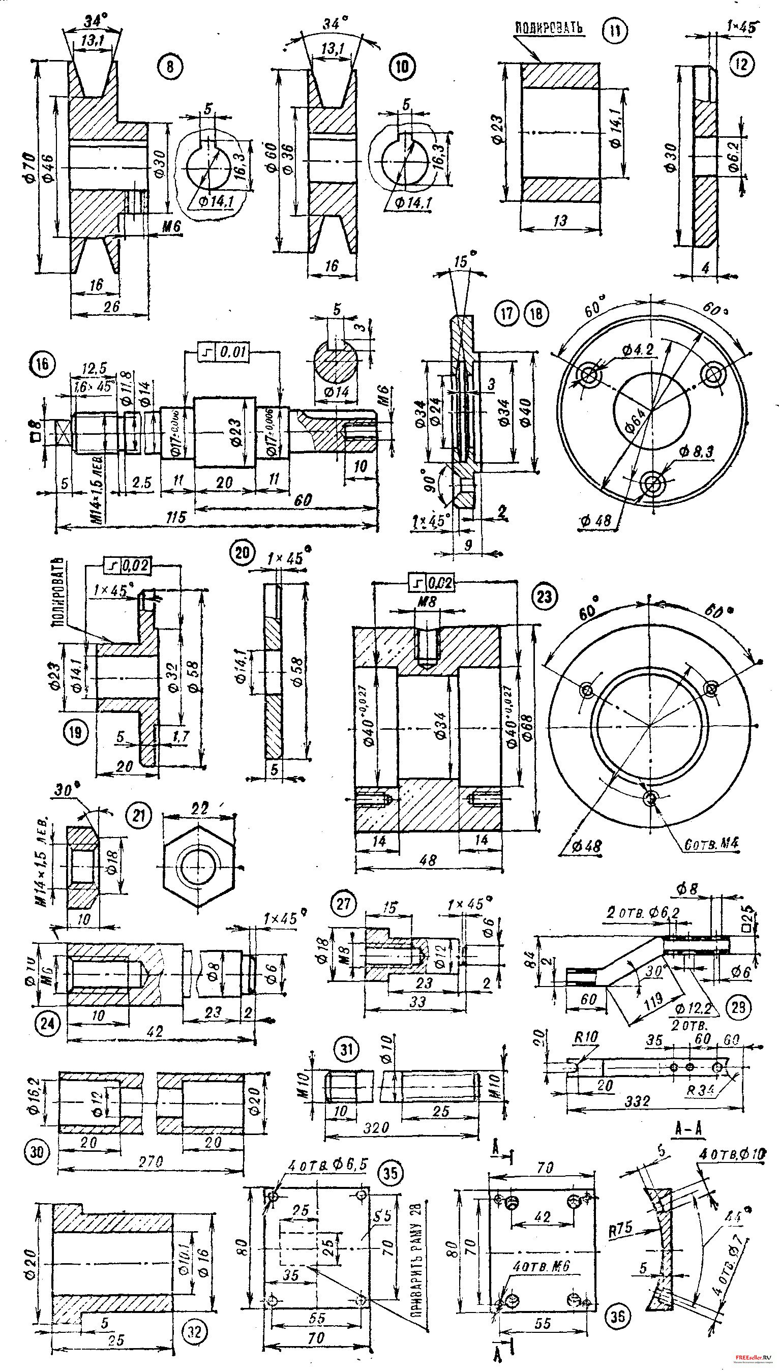
Рис. 1 Маятниковая пила:
 1 - электродвигатель, 2 - опора, 3 - защитный кожух инструмента, 4 - инструмент (абразивный диск), 5 - защитный кожух ремня, 6 - клиновой ремень А-1018, 7 - винт М8Х14 мм, 8 - ведущий шкив (Д 16), 9 - крышка кожуха ремня (сталь), 1C - ведомый шкив (Д 16), 11 - распорная втулка (сталь), 12 - шайба (сталь), 13 - рукоятка маятниковой подачи, 14 - болт М6Х12 мм, 15 - винт М5 X10 мм, 16 - вал (сталь), 17 - крышка (Д 16), 18 - крышка (Д 16), 19 - втулка (сталь), 20 - шайба (сталь), 21 - гайка (сталь), 22 - шарикоподшипник № 203. 23 - корпус (сталь), 24 - бобышка (сталь), 25 - винт М6Х8 мм. 26 - винт М8 X 16 мм, 27 - бобышка (сталь), 28 - рама (сталь), 20 - болт М6Х16 мм, 30 - труба 1/2'' (сталь), 31 - ось (сталь), 32 - втулка (сталь), 33 - шайба, 34 - гайка М10, 35 - плита (сталь), 36 - промежуточный корпус (Д 16). 


Основа пилы - хребтовая рама квадратного сечения, к которой с одной стороны приварен корпус шпинделя, а с другой - плита для установки двигателя. Через паз в раме пропущена труба 1/2'' - она является корпусом оси качания пилы. Выполняя сварочные работы, проследите, чтобы ось вала двигателя, вал шпинделя и ось качания пилы были строго параллельными. После сварки раму обязательно отрихтуйте, зачистите сварные швы и окрасьте нитроэмалью с предварительной грунтовкой.

Кожух ремня и кожух абразивного диска - из листовой стали толщиной 2 мм. Сваривать заготовки лучше всего изнутри угловым швом. Кожух ремня крепится винтами непосредственно к двигателю и раме, к которой привинчен и кожух абразивного диска. Приводная рукоятка располагается на съемной крышке кожуха ремня.

Подшипники шпинделя перед сборкой набейте смазкой ЦИАТИМ-221. В канавки подшипников вставьте войлочные кольца, пропитанные жидкой смазкой.

У собранной пилы двигатель должен перевешивать шпиндель и находиться внизу, между опорами, в противном случае в момент включения пилы абразив может удариться о заготовку и раскрошиться.

 

 

Рис. 2 Приспособления к маятниковой пиле: 
А - для прорезки пазов:
1 - кожух ременной передачи, 2 - кронштейн, 3 - рабочий стол, закрепленный в тисках;

Б - для резки листового материала: 
1 - кожух ременной передачи, 2 - откидной стол, 3 - шарнир, 4, 5 - кронштейны. 


При работе на маятниковой пиле необходимо строго соблюдать правила техники безопасности. Питающий кабель должен быть защищен от механических повреждений стальным гибким шлангом, который можно взять от душевого шланга. Электродвигатель, а также сама пила должны быть надежно заземлены. Рабочий инструмент закрепляйте на валу только гайкой с левой резьбой. Работать с пилой без защитных очков опасно.

Если в процессе эксплуатация устройства ослабнет приводной ремень, его необходимо подтянуть, для чего между плитой рамы и двигателем достаточно проложить пластину необходимой толщины.

 В. ЗАЙЦЕВ, инженер-конструктор
 "Моделист-Конструктор" 1985, №12

Маятниковая пила своими руками

kovboy

Автор работы

2

комментария

87 396

просмотров

Похожие самоделки

Комментариев 2
  1. Где-то я это уже читал...
    0
Имя:*
E-Mail:


Песочница RSSРеклама на сайтеFreeseller.ru - Полезные самоделки
Copyright © 2008-2025