
Конструкция самодельного мотоблока, предлагаемый вашему вниманию, проста и доступна для повторения. Достоинство его состоит еще и в том, что он имеет оригинальную подвеску почвообрабатывающих орудий, необычные колеса, а также багажник. С помощью этого самодельного мотоблока можно пахать, боронить, сажать и окучивать картофель, выпахивать клубни, сгребать ботву, перевозить урожай и удобрения.
Мотоблок прост в изготовлении и поистине универсален. Он станет надежным помощником в огороде и в саду, избавит вас от тяжелого ручного труда при выращивании и уборке урожая. Машина всесторонне проверена в деле, удобна и практична. С нею в состоянии управиться даже подросток.
Рис. 1, рис. 2. Внешний вид самодельного мотоблока Архипова.
Конструкция самодельного мотоблока, предлагаемый вашему вниманию, проста и доступна для повторения. Достоинство его состоит еще и в том, что он имеет оригинальную подвеску почвообрабатывающих орудий, необычные колеса, а также багажник. С помощью этого самодельного мотоблока можно пахать, боронить, сажать и окучивать картофель, выпахивать клубни, сгребать ботву, перевозить урожай и удобрения.
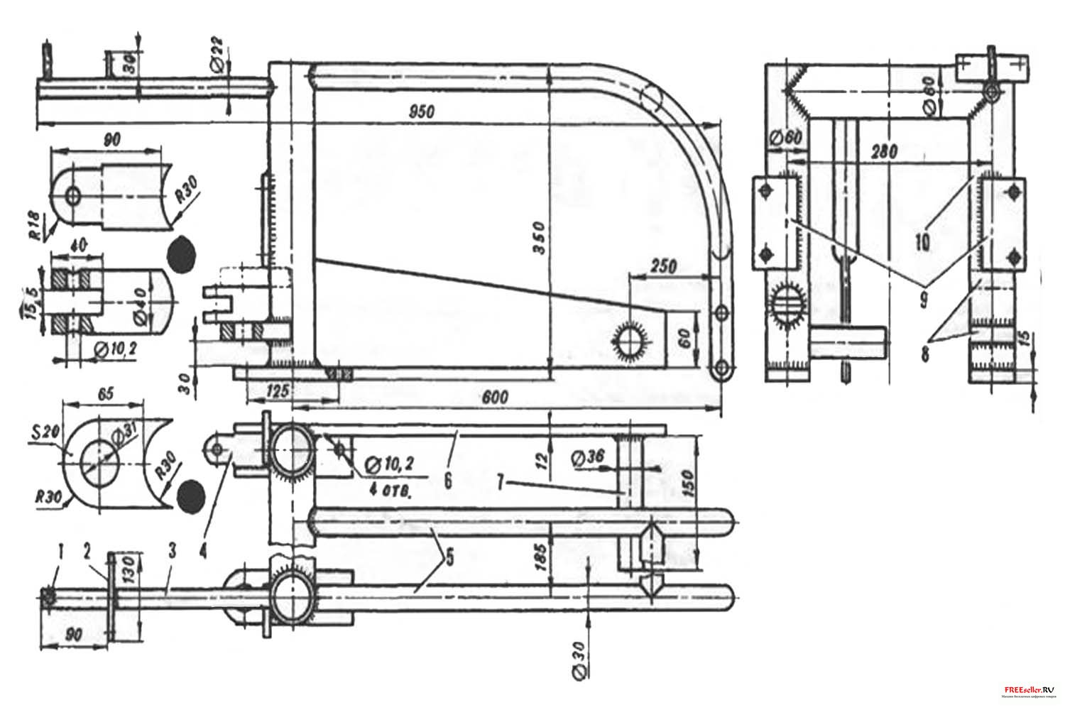
Мотоблок представляет собой одноосную двухколесную самоходную машину с двигателем от мотороллера ВП-150М. Архипов выбрал этот двигатель потому, что он имеет принудительное воздушное охлаждение головки цилиндра, что очень важно: ведь мотоблоку приходится работать с максимальными нагрузками при минимальных скоростях.
Большинство деталей - промышленного изготовления. От мотороллера также взяты часть подвески двигателя, часть рамы (двойная дуга), цепи, рукоятки и тросы управления.
Рис. 3. Общий вид самодельного мотоблока Архипова:
1 - откидная опора, 2 - педаль кикстартера, 3 - двигатель, 4 - топливный бак, 5 - багажник, 6 - рычаг переключения передач, 7 - рычаг сцепления, 8 - рычаг газа, 9 - звездочка вторичного вала, 10 - плуг, 11 - колесо. 12 - подвеска двигателя.
Все остальное изготовлено самостоятельно. Колесная ось выточена на токарном станке. П- образная рама сварена из труб 0 60 мм. Из труб и багажник. Самодельные также три шарнира основной и регулирующей тяги, соединяющих мотоблок с плугом и рулем. Собственной постройки и устройство переключения передач. К раме приварена стальная труба с осью на конце. На оси установлено качающееся коромысло для натяжения тросов, идущих к коробке передач двигателя. Ручка переключения передач - также отрезок трубы, приваренный к коромыслу.
На ходовой вал устанавливаются: звездочка (она приваривается), корпус с подшипниками, обгонные муфты, исполняющие функции дифференциала, колеса, затем - рама. К раме крепится телескопическая тяга с рулем и плугом.
Рис. 5. Ходовой вал мотоблока в сборе:
1 - вал, 2 - звездочка, 3 - крышка, 4 - корпус подшипника, 5 - опорная площадка, 6 - подшипник № 308, 7 - корпус обгонной муфты, 8 - ось собачки, 9 - собачка,10 - храповик, 11 - подшипник № 307, 12 - шайбы, 13 - колесо, 14 - пружина собачки.
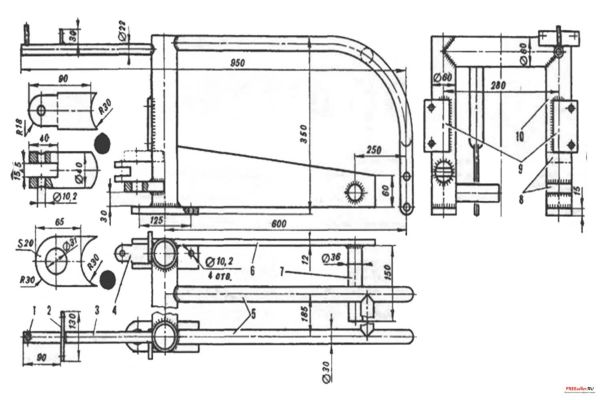
Теперь о колесах. Благодаря особой форме они лучше сцепляются с почвой и не забиваются землей. В отличие от резиновых эти колеса практически не уплотняют почву, а, наоборот, рыхлят ее.
Рис. 6. Багажник.
Рис. 7. Колесо.
Две дугообразных трубы от рамы мотороллера соединяют часть подвески двигателя и раму мотоблока. Между трубами располагается бак с топливом.
Очередь за двигателем. К П-образной раме слева консольно приварен кронштейн, имеющий на конце поперечную стальную ось 0 36 и длиной 150 мм. Двигатель вместе с подвеской навешивается на эту ось и прикрепляется к дугообразным трубам рамы. Устанавливается на свое место вторичный вал, и натягиваются цепи. Протягиваются тросы управления.
Рис. 8. Узел управления:
1 - соединительная ось, 2 - планка, 3 - труба, 4 - рукоятки.
В сравнении с другими конструкциями подобного типа мотоблок Архипова имеет ряд конструктивных преимуществ. До него тягачи и обрабатывающие инструменты соединялись жестко между собой, что затрудняло повороты. Архипов же придумал шарнирное соединение, которое позволяет «держать» борозду или изменять направление движения в небольших пределах, не вынимая плуг из земли.
Рис. 9. Соединительные элементы:
1 - основная тяга, 2 - регулирующая тяга.
Этот элемент обеспечивает и еще одно преимущество - постоянство заданной глубины пахоты без применения дополнительных усилий. Необходимая глубина вспашки поддерживается не подъемом и опусканием плуга а изменением его угла по отношению к борозде, что происходит автоматически: если плуг начинает зарываться, то на него действует подъемная сила, создаваемая полевой доской; если лемех вылезает из почвы, угол атаки его увеличивается, и он вновь заглубляется в почву до заданной глубины, обеспечивающей устойчивое равновесие.
Во время работы плуг, преодолевающий сопротивление почвы, часто заносит также в сторону, и пахарю, работающему с мотоплугом жесткой конструкции, приходится прилагать немалые усилия для выравнивания борозды. Архипов такое неудобство устранил: ось его плуга расположена под некоторым углом к направлению движения. Это положение регулируется тремя шарнирами тяги. Мотоблок при пахоте слегка повернут влево, что компенсирует занос.
При проведении первой борозды (наиболее ответственный момент) удерживать прямое направление надо самим плугом, ведь рукоятки управления связаны жестко с ним, а не с мотоблоком. При их повороте с незначительным усилием все устройство изменяет направление движения. Допустим, надо повернуть направо. Пахарь отклоняет рукоятки в... противоположную сторону. А так как плуг не может сместиться туда же - он как бы закреплен в земле, то тяга, идя вслед за рукоятками, разворачивает мотоблок вправо.
На второй и последующих бороздах управление упрощается, поскольку правое колесо идет по борозде как по копиру.
Культиватор, борону и грабли устанавливают регулирующей тягой точно посредине колеи. Крепят теми же двумя болтами, что и плуг. Кронштейны этих орудий немного развернуты в вертикальной плоскости, чтобы компенсировать угол, на который был установлен плуг. К бороне кронштейн приварен в середине вертикально. Такой бороной при движении пахарь может управлять, опуская при необходимости то один, то другой край и разбивая большие комья земли.
На неровной почве борона не реагирует на различные наклоны мотоблока. (А при жесткой связи с ним она копирует их, оставляя огрехи).
Для посадки картофеля Архипов использует культиватор со снятыми отвалами. Установив его на место плуга, он проводит борозды в земле и укладывает в них клубни. Затем ставит на место отвалы и запахивает клубни, пуская культиватор между бороздами. Точно так же окучиваются и проросшие посадки.
Культиватором можно выкапывать и выпахивать урожаи. Ширину захвата изменяем отвалами.
Ботва, оставшаяся после уборки, а также пропущенный картофель, убирается бороной или граблями. Граблями, кстати, удобно, сгребать в кучи накошенную траву.
Кроме сельскохозяйственных работ, мотоблок Архипова применяется, в частности, для уборки снега. Дополнительно устанавливается только небольшой бульдозерный нож. Можно и тротуар подметать, поставив дополнительную звездочку и валик с круглой щеткой.