Джип вездеход своими руками

  • Опубликовано: 30 марта 2010


Внешне «джип» выглядит меньше, чем, скажем, ЛуАЗ, хотя по размерам салона и багажника ему не уступает. Это достигнуто, во-первых, плотной «упаковкой» двигательного отсека и, во-вторых, наружным размещением части багажа (на крыше), запасного колеса (слева по борту) и канистры (сзади). Полный вес — 900 кг.


«Комфорт, широта обзора, красота!» - так отозвался об этом автомобиле космонавт Владимир Джанибеков, посидев за его рулем. Создатель «джипа» С. Хопшаносов из Еревана получил 1-ю премию на смотре самодельных автомобилей, машину показали в телепередаче «Это вы можете».

Не сомневаемся, дорогой наш читатель, что и вы сможете построить такой автомобиль. Поможет вам в этом опыт Станислава Хопшаносова.

Задумывая автомобиль для путешествий, автор решил заложить в него конструктивную простоту, надежность в работе, неприхотливость и доступность в обслуживании. При выборе компоновки остановился на схеме «джипа», однако его вариант от классического отличается тем, что имеет только один ведущий мост - задний, для простоты.

Внешне «джип» выглядит меньше, чем, скажем, ЛуАЗ, хотя по размерам салона и багажника ему не уступает. Это достигнуто, во-первых, плотной «упаковкой» двигательного отсека и, во-вторых, наружным размещением части багажа (на крыше), запасного колеса (слева по борту) и канистры (сзади). Полный вес - 900 кг.

Упрощения, впрочем, не сказались на ходовых качествах машины, она прошла уже сотни тысяч километров. Каждый год на ней совершались поездки из Еревана в Москву и обратно. В том числе с самодельным прицепом-дачей весом 500 кгс. Участие в автопробеге намного удлинило это путешествие. Однако конструкция с честью выдержала испытание дорогами Карелии и Кольского полуострова. «Джип» уверенно шел и по трассе (со скоростью до 120 км/ч), и по разбитой колее.

Бывало, С. Хопшаносов помогал застрявшим коллегам-автомобилистам, подталкивая их машины передним бампером своего вездехода.

В родной Армении он поднимался на нем на высоту до 3000 м над уровнем моря, преодолевая бездорожье, каменистые осыпи, уклоны до 30°.

Невзгоды пути легко переносятся в удобном и уютном салоне автомобиля. В жаркую погоду можно сдвинуть любое из четырех боковых стекол для притока свежего воздуха. Или, если этого недостаточно,- открыть люк в крыше.


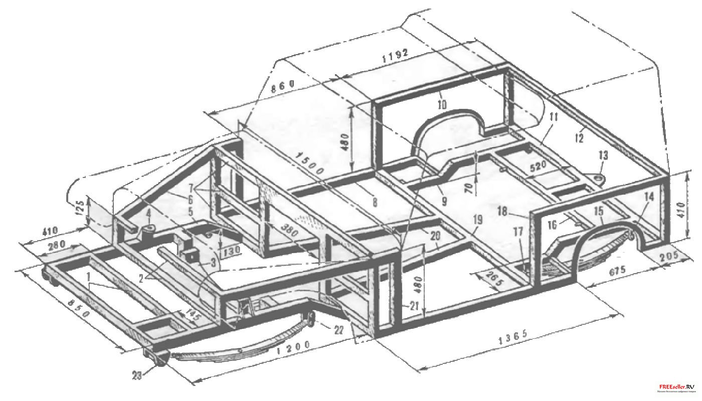
Рис. 1. Общий вид джипа вездехода

Много в машине и других простых и оригинальных конструкторских решений. Вот, например, как устроен кузов. Он состоит из пространственной рамы и наружной обшивки. Рама, рассчитанная на значительные крутящие и изгибающие нагрузки, сварена из стальных труб квадратного и прямоугольного сечения. Менее нагруженные капот, двери и заднее окно сделаны из швеллеров, тавров и уголков, соединенных заклепками.

Пол в салоне и обшивка капота выполнены из рифленых дюралюминиевых листов толщиной 2 мм. Обшивка кузова - из гладких листов толщиной 1,5 мм. К раме они прикреплены винтами М5 с потайными головками. Стыки листов скрыты резиновыми и металлическими накладками.


Рис. 2. Рама кузова:
1 - передняя балка (50Х 25 мм), 2 - элементы  моторного отсека (50Х 25 мм), 3 - ложемент крепления двигатели, 4 - кронштейн амортизатора, 5 - передний лонжерон (50X50 мм), 6 - балка капота (40X40 мм), 7 - элементы задней стенки моторного отсека (50X25 мм), 8 - порог (50Х 25 мм), 9 - задний лонжерон (40X40 мм), 10 - борт (25X20 мм), 11 - задняя поперечина (40X40 мм), 12 - подоконная перекладина (25 X 20 мм), 13 - прицепной кронштейн, 14 - серьга -задней рессоры, 15 - арка заднего колеса (уголок 25X25 мм), 16 - промежуточная поперечина (40x40 мм) с пальцами креплении амортизатора к кузову, 17 - кронштейн задней рессоры, 18, 21 - дверные стойки (40X40 мм), 19 - передний поперечина (40x40 мм), 20 - подкосы (50X25 мм), 22 - серьга передней рессоры 23 - кронштейн п 'редн й рессоры.


Кабина изнутри выстлана тонким слоем поролона и мягким пластиком. Триплексное остекление, а также двери снабжены резиновыми уплотнителями от автомобилей Волжского автозавода. Пол покрыт резиновыми и синтетическими ковриками. Все это снижает уровень шума в салоне и препятствует проникновению пыли.

Приборный щиток и перчаточный ящик - самодельные. Передние кресла с откидывающимися вперед спинками - «жигулевские». Заднее пассажирское сиденье, рассчитанное на трех человек, самодельное и имеет фиксированную спинку. За ним, внизу,- топливный бак емкостью 45 л (от «уазика») с горловиной, выведенной наружу под задним бампером. Над баком расположен внутренний багажник. Доступ к нему через заднее окно.

Принцип «простота плюс надежность» распространился и на силовую установку: двигатель и коробка передач взяты вместе с обслуживающими их агрегатами от «Жигулей» ВАЗ-2101. Только бумажный масляный фильтр заменен более дешевым в эксплуатации инерционным от ЗАЗ-968.

Задний мост, с учетом возможности буксировки прицепа, взят от ВАЗ-2102 и немного доработай: удалены нижние опорные чашки пружин подвески и кронштейны крепления верхних реактивных штанг. Вместо них к балке моста приварены две П-образные подрессорные подушки.

Рессоры использованы от передней подвески автомобиля УАЗ-469 Каждый пакет состоит из пяти листов, покрытых перед сборкой графитовой смазкой. К раме кузова они подвешены в районе задних лонжеронов.


Рис. 3. Доработка заднего моста:
1 - нижняя опорная чашка наружной подвески (удаляется, вместо нее приваривается подрессорная подушка), 2 - кронштейн крепления верхней реактивной штанга (удаляется), 3 - левая подрессорная подушка (приваривается).


Кроме рессор имеются телескопические амортизаторы. Резино-металлическими шарнирами резервуаров они, как и на «Жигулях», крепятся к кронштейнам заднего моста, а шарнирами кожуха - к пальцам на промежуточной поперечине рамы.

Крутящий момент от двигателя к заднему мосту передается карданным валом от «Волги» ГАЗ-21. Выбор именно этого типа обусловлен тем, что он более прост и надежен и не требует особого ухода. Правда, посадочные отверстия не совпадают, поэтому для присоединения вала к фланцам коробки передач и моста выточены переходники.


Рис. 4. Переходник.


Они представляет собой стальные шайбы диаметром 100 мм и толщиной 33 мм, в которых просверлены 8 сквозных отверстий. В 4-х соответствующих отверстиях по фланцу нарезан резьба М8, а в остальных М10

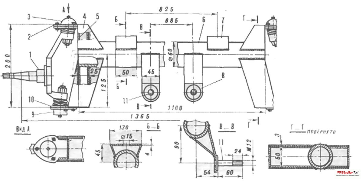
Что касается переднего моста, то он полностью самодельный: Проектируя его, Хопшаносов руководствовался своим излюбленным принципом «простота плюс надежность». Ход рассуждений был примерно такой: передний мост очень ответственный агрегат. Он обеспечивает управление движением, от его «самочувствия» зависит «здоровье» всего автомобиля. Следовательно, чем меньше в нем будет деталей и подвижных соединений, тем лучше.


Рис. 5. Передний мост:

1 - поворотная цапфа, 2 - верхняя опорная площадка, 3 - болт н верхний шаровой подшипник, 4 - накладка, 5 - труба 50X X 25 мм, 6 - основная труба, 7 - подрессорная площадка, 8 - кронштейн цапфы амортизатора, 9 - болт и нижний шаровой подшипник, 10 - нижняя опорная площадка, 11 - цапфа амортизатора.


Три года эксплуатации показали: решение было принято верное. Какие только камни и выбоины ни попадали под передние колеса - все нипочем. Вот как устроен мост.

Основной его элемент - толстостенная бесшовная стальная труба 060 и длиной 1100 мм. К ней приварены подрессорные подушки, пальцы крепления амортизаторов и опорные площадки шаровых подшипников передней подвески.


Рис. 6, Схема люка:
I - люк, 2 - ручка, 3 - направляющая, 4 - крыша, 5, 6 - желоба.


При сборке переднего моста необходимо учитывать развал колес, поэтому опорные площадки присоединялись к трубе в определенном порядке Сначала приваривались нижние и к ним привинчивались (тоже нижние) шаровые подшипники поворотных цапф «жигулевских» колес. Верхние же площадки сначала прикреплялись к соответствующим шаровым подшипникам поворотных цапф, а затем уже приваривались к трубе. Причем угол развала составил 0°20/ 0°30', что соответствует 2-3 мм разности между размерами, взятыми от краев ободьев колес до вертикали (труба при этом горизонтальна); устанавливался с помощью отвеса. К раме кузова передний мост присоединен так же, как и задний,- рессорами (по четыре листа в пакете) с помощью болтов и хомутов и телескопическими амортизаторами, штоки которых упираются в специальные кронштейны на передних лонжеронах.


Рис. 7. Рулевой привод:
I - рулевой вал, 2 - карданные шарниры, 3 - промежуточный вал, 4 - рулевой механизм, 5 - нерегулируемая тяга, 6 - регулируемая тяга, 7 - сдвоенный рычаг правого колеса, 8 - поворотная цапфа, 9 - одинарный рычаг левого колеса.


Схождение колес регулируется рулевой тягой (от «Волги» ГАЗ-21).

Устройство управления вездеходом тоже очень простое и надежное. Поворачивая «баранку», водитель через два вала и два шарнира (от ЗИЛ-130), расположенных под капотом, воздействует на рулевой механизм, закрепленный на передних балках перед решеткой радиатора. Далее усилие нерегулируемой тягой передается сдвоенному (сваренному из двух) рычагу правой поворотной цапфы, а от нее регулируемой тягой - рычагу левой поворотной цапфы.

Тормозная система, отопитель салона, фары и электропроводка заимствованы у «Жигулей» ВАЗ-21011, задние фонари - у прицепа «Скиф», а стеклоочистители и контрольные приборы использованы от автомобиля УАЗ-469.

С. Хопшанов (Сам 1993 01)


1

комментарий

59 194

просмотра

Похожие самоделки

Комментариев 1
  1. Я Герман Гриков, учусь во 2Г обязательно сделаю вездеход.
    +1
Имя:*
E-Mail:


Песочница RSSРеклама на сайтеFreeseller.ru - Полезные самоделки
Copyright © 2008-2025