Держатель электродов для электроискрового карандаша

  • Опубликовано: 12 января 2009

 

Предлагаю конструкцию держателя электродов, в которой нанесение точек надписи обеспечивается за счет электромагнитного прерывателя, расположенного в корпусе электроискрового карандаша.


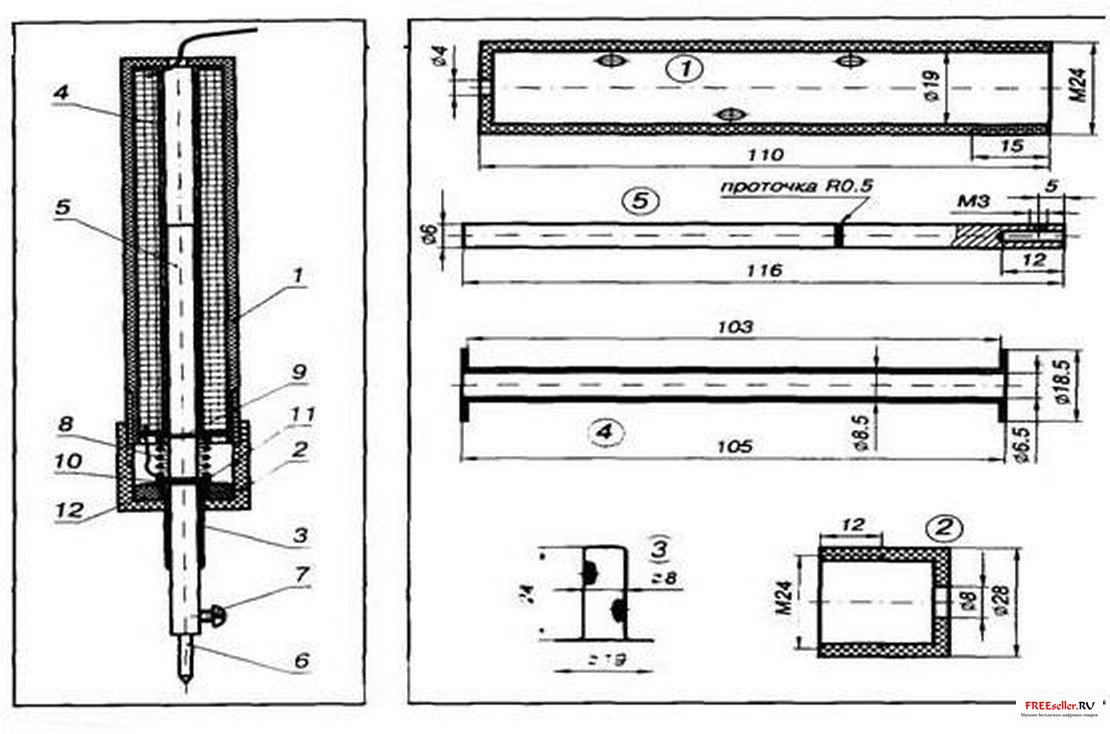
Как видно из рисунка, конструкция его проста и не вызовет затруднений при изготовлении держателя. Корпус 1 и крышка 2 выполнены из изоляционного термостойкого материала. В теле корпуса просверлен ряд вентиляционных отверстий. Защитный колпачок 3 подобран готовый, в данном случае отштампован из тонкой стали толщиной 0,3 мм и, также как и корпус, имеет вентиляционные отверстия. Каркас обмотки электромагнита 4 - стальной, но его можно выполнить и из другого материала, например текстолита, или подобрать готовый. Шток 5 с держателем электрода представляет собой стержень из магнитомягкой стали, в котором предусмотрены отверстие для электрода 6 и резьбовое отверстие для стопорного винта 7.

 

 

Рис.1 Конструкция держателя электроискрового карандаша 
1 - текстолитовый корпус, 2 - крышка, 3 - защитный колпачок, 4 - каркас обмотки, 5 - шток, 6 - электрод, 7 - стопорный винт, 8 - пружина, 9 - шайба, 10 - резиновая фиксирующая шайба, 11 - контактная шайба (лепесток), 12 - резиновая шайба


Ход штока с одной стороны ограничивает фиксирующая шайба 10, с другой - стопорный винт. При движении штока он упирается в защитный колпачок. Обмотка выполнена обмоточным эмалированным проводам 02 УМ типа ПЭЛ-2 и имеет примерно 150 витая (до заполнения каркаса). Слои намотки друг от друга и от каркаса изолированы лакотканью.
Один вывод обмотки соединен мягким многожильным медным проводом сечением 1,5-2 ми с истомой питающего напряжения, другой конец-отрезком многожильного провода подпаян к контактной шайбе 11, представляющей контактный лепесток с отверстием для штока. Возвратная пружина 8 подобрана готовая и имеет 7 витков общей длиной 20 мм. Размеры, приведенные на рисунке, большого значения не имеют. Главное, чтобы основные части держателя обеспечивали свободное перемещение штока.
Работают этим держателем так. Электрод подносят к гравируемой поверхности. При касании замыкается электрическая цепь. Электромагнит втягивает шток, цепь разрывается и возвратная пружина возвращает гравирующий электрод до соприкосновения с металлом. Процесс повторяется. А электрическая искра, возникающая в моменты соприкосновения и разъединения электрода и металла, гравирует последний.


В. БУРАКОВ, Москва

Держатель электродов для электроискрового карандаша

kovboy

Автор работы

0

комментариев

30 304

просмотра

Похожие самоделки

Имя:*
E-Mail:


Песочница RSSРеклама на сайтеFreeseller.ru - Полезные самоделки
Copyright © 2008-2025