Детский стул из фанеры

  • Опубликовано: 5 октября 2018

Детский стул из фанеры


Делаем детский стул из фанеры своими руками.


Думаю, что такой стул понадобиться всем у кого есть маленькие дети, и не только...


Стул сделан из фанеры толщиной 9 мм, обладает высокой прочностью и подойдёт не только детям, но и взрослым. Также стул можно использовать как садовую мебель, ходить с ним на рыбалку, или найти другое полезное применение-тут каждый выберет сам.

  Детский стул из фанеры


Таких подобных стульев на рынке очень много, но данный экземпляр был разработан мной с ноля.

Благодаря таким соединениям деталей,и фанере стул получился очень прочный и надёжный.

Материалы и инструменты

Материалы и инструмент которые нам понадобится для изготовления

  • фанера толщиной 9 мм;
  • лобзик (электро либо ручной);
  • клей ПВА;
  • наждачная бумага;
  • краска на ваш вкус.

Изготовление стула

Чертежи

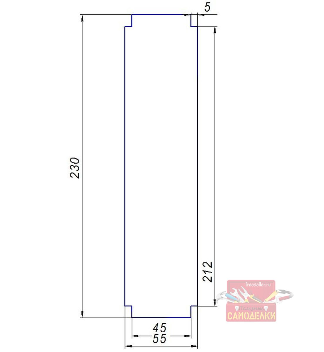
А начнем мы процесс изготовления, пожалуй, с разметки фанеры. Для того, чтобы всё правильно разметить я сделал подробные чертежи по которым все размеры можно перенести на фанеру (толщина 9 мм). Для одного стула достаточно взять кусок фанеры размером 640 мм на 570 мм, всё рассчитано под фанеру толщиной 9 мм, но можно использовать и 8 мм или 10 мм внеся в чертёж небольшие коррективы.

  Детский стул из фанеры - чертежиДетский стул из фанеры - чертежиДетский стул из фанеры - чертежиДетский стул из фанеры - чертежиДетский стул из фанеры - чертежи

Изготовление 3D модели

К сожалению - это не самый простой и быстрый путь к конечной цели, и здесь вам придётся изрядно попотеть, дублируя все линии на фанере. Но есть и более лёгкий путь для достижения цели. Поскольку я точно не мог угадать и просчитать все размеры, я решил сделать сразу готовый макет стула, в котором экспериментальным путём подобрал все размеры, углы, и величины. Потом всё разобрал, снял все размеры, и начертил всё это в программе КОМПАС 3D. Теперь для всех у кого есть компьютер, принтер и наличие "прямых рук", процесс изготовления стула сильно упрощается.


Установка Компас 3D

Для начала нужно скачать программуК помощью которой мы напечатаем нужные нам чертежи.


Скачиваем программу KOMPAS-3D V14 x32 Portable miniчерез торрент нажимая на ссылку, или забиваем название программы в поисковик и скачиваем из любого удобного для вас места. Программа не требует установки на компьютер. Программу я скачал и проверил на работоспособность. Программа рассчитана под 32-х разрядную систему, но без проблем работает на 64-х разрядной системе.

Открываем папку с программой.

  Установка Компас 3D


Далее жмем Bin.

  Установка Компас 3D


Потом ка значок программы чтобы открыть её.

  Установка Компас 3D


Жмём Ок на диалоговом окне.

  Установка Компас 3D


Теперь скачиваем файл с чертежами (Фанера 9 мм 640 на 570.frw).


Скачать файл:
fanera-9-mm-640-na-570.zip [14,42 Kb] (cкачиваний: 562) .zip


Далее открываем скачанный файл в программе.

  Установка Компас 3DУстановка Компас 3D


Далее в программе жмём на предварительный просмотр.

  Чертежи детского стула в программе Компас 3D


У вас откроется окно для печати где нужно нажать на значок принтера и на семи листах формата А4 распечатать наши чертежи.

  Чертежи детского стула в программе Компас 3DЧертежи детского стула в программе Компас 3D

Распечатка чертежей

На выходе получим такую распечатку.

  Детский стул своими руками- чертежи заготовки для выпиливания

Выпиливание заготовок

Все линии совмещаем и склеиваем листы между собой. Потом готовый чертёж можно наклеить на лист фанеры и можно приступать к вырезанию деталей из фанеры. У вас должны получиться похожие заготовки.

  Детский стул своими руками- заготовки из фанеры

Сборка стула

Ну и на конец самый простой и быстрый путь для достижения нашей цели, доступен счастливым обладателям станков ЧПУ, или тем кто имеет к ним доступ. Все детали на таком станке можно вырезать за считанные минуты. 


Теперь, когда все детали выпилены, займёмся сборкой стула. Для сборки нам понадобится клей ПВА либо его аналоги, типа D3, D4 и т.д.

  Детский стул своими руками - сборкаДетский стул своими руками - сборкаДетский стул своими руками - сборка


Далее садим на клей спинку и сидушку, и вот наш стул собран.

  Детский стул своими руками - сборкаСамоделки. Детский стул из фанерыСамоделки. Детский стул из фанерыСамоделки. Детский стул из фанерыСамоделки. Детский стул из фанеры


Далее остаётся всё хорошо пройтись наждачной бумагой, подобрать краску, покрасить и наслаждаться готовым изделием. Свой стул я не доводил до совершенства и не красил, поскольку собирал его исключительно как макет для наглядности.


Жду ваших комментариев! 


Кому что-то не понятно - спрашивайте, на все вопросы с удовольствием отвечу )


Всем удачных самоделок и реализации идей!



1

комментарий

9 219

просмотров

Похожие самоделки

Комментариев 1
  1. Класно, буду делать, спасибо ? 
    0
Имя:*
E-Mail:


Песочница RSSРеклама на сайтеFreeseller.ru - Полезные самоделки
Copyright © 2008-2025