Самодельная мини лодка

  • Опубликовано: 4 мая 2011

Самодельная мини лодка


Конструкция данной мини лодки предназначена для рыбалки в тихом месте, Лодка обладает малыми габаритными размерами, и легко перевозится без помощи прицепа (на крыше автомобиля).


Данная мини лодка, сконструированная Е.Севостьяновым из, п. Изоплит, Тверской обл. предназначена для рыбалки в тихом месте. Лодка обладает малыми габаритными размерами, и легко перевозится без помощи прицепа (на крыше автомобиля).


Лодка делается из дюралюминиевого листа, который разрезать на части для мелких изделий просто не поднималась рука. Он (длиной 2700 мм шириной 1800 и толщиной 2 мм) во многом и определил конструкцию лодки, ее размеры и обводы.


За прототип взял маломерное судно, которое называют «джонбот» (наверное, за одновременное внешнее сходство как с двухтранцевой китайской лодкой - джонкой, так и с портовым трудягой - ботом). Эти суденышки очень остойчивы и имеют значительную грузоподъёмность, что мне и было нужно в первую очередь.


Проектировал лодку, исходя из размеров имевшегося листа металла. Высоту бортов назначил 350 мм (где-то читал, что это минимально допустимая), а длину переднего транца - 600 мм, что соответствует углу его наклона к зеркалу воды примерно 35°. И хотя раскрой листа металла предвиделся несложным, сделав эскизы будущей лодки и стараясь предусмотреть все предстоящие сложности, выполнил ее макет из жесткого листа картона.


В конструкции лодки дюралюминиевый лист использовал в качестве бортов и днища. В то же время он является несущим элементом, так как обычного силового набора из шпангоутов и стрингеров в лодке нет. Лишь отчасти их роль выполняют две банки (сиденья) и планширь. Нет у лодки привычного форштевня, да и киля, как такового, поскольку она практически плоскодонная, а борта у нее впереди не сходятся на форштевне, а переходят в наклонный трапециевидный транец.

 

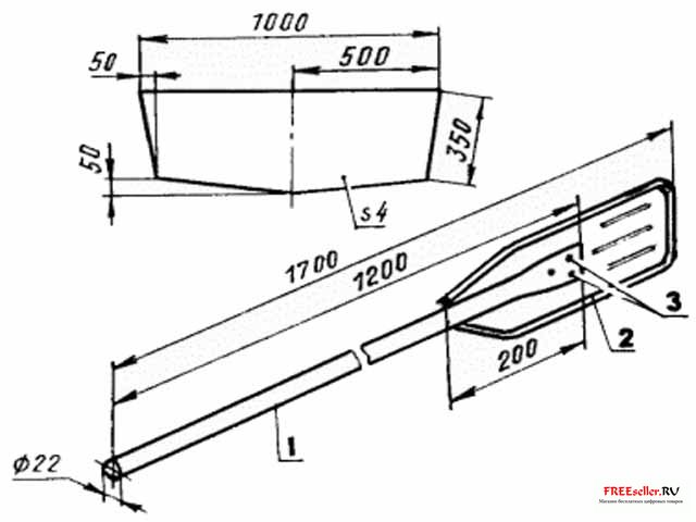
Рис.1. Внешний вид самодельной мини лодки:

1 - передний транец; 2 - заклепки (алюминий диаметром 3, по месту); 3 - борт; 4 - банка гребца (доска лиственных пород s20); 5 - накладка (Ст3, лист s2, 2 шт.); 6 - уключина (Ст3, лист s4, пруток диаметром 10, 2 шт.); 7 - кница (дюралюминий, лист s1,5, 2 шт.); 8 - задний транец (дюралюминий, лист s5); 9 - пайол (брусок лиственных пород 40x20); 10 - банка пассажира (доска лиственных пород s20); 11 - планширь (еловая доска s15, 2 шт.); 12 - спинка банки гребца (доска лиственных пород s20); 13 - стойка спинки (дюралюминий, труба диаметром 22, 2 шт.); 14 - кронштейн для установки сиденья (дюралюминий, уголок 40x25, 4 шт.); 15 - палубный настил (дюралюминий, лист s1,5); 16 - бимсы (еловая доска s15); 17- оцинкованные гвозди.

Рис.2. Теоретический чертеж мини лодки:
1 - линия борта; 2 - линия скулы; 3 - линия киля; 4 -линия транца.

Рис.3. Развёртка обшивки (примерный раскрой дюралюминиевого листа s2) и выкройка заднего транца:
1 - линии контура листа; 2 - линии сгиба; 3 - линии отреза; 4 - вспомогательные линии разметки; 5 - удаляемые части листа (серый цвет); 6 - удаляемые по месту части листа (черный цвет); 7 - задний транец (дюралюминий, лист s4)


Достоинства лодок с дюралюминиевой обшивкой общеизвестны и обнаруживаются еще на берегу: легкость, прочность, долговечность. И хотя последнее обстоятельство в расчет и не бралось (суденышко изготавливалось, в общем-то, как временное плавсредство - до приобретения хорошей надувной лодки), но все вышло по поговорке: «Нет ничего постояннее, чем временное» - лодка служит уже несколько лет и разбирать её пока не собираюсь, уж очень практичное получилось судёнышко. Для перевозки лодки не нужен прицеп - её вполне можно транспортировать на багажнике, установленном на крыше легкового автомобиля. На него лодку легко грузить вдвоем и даже можно произвести погрузку одному. Нет забот с обслуживанием и консервацией для хранения - поставил её на борт или на задний транец, придвинул к стенке и пусть стоит до следующей навигации под навесом, занимая совсем небольшую площадь.


На воде проявляются и другие положительные качества лодки: хорошая остойчивость, большое водоизмещение (плавучесть), высокая маневренность и лёгкость хода на вёслах. Ну а такие характеристи ки, как ходкость или устойчивость на курсе при таких скоростях лодки если не излишни, то уж никак не основные, поэтому ими пренебрёг для обеспечения других вышеперечисленных качеств.


Сомнения при проработке варианта конструкции возникли лишь при выборе поперечных размеров: то ли сделать борта повыше, а ширину поменьше, то ли наоборот. Выбор пал на вариант «наоборот». На тех акваториях, где предстояло лодке плавать, - тихие заводи, спокойные речушки, небольшие озера и т.п., сильного течения и больших волн нет, а значит, не так уж необходимы высокие борта. А вот значительная ширина - как раз то, что нужно. Нередко на рыбалке или охоте за водоплавающей дичью приходится вставать в лодке даже во весь рост.

Рис.4. Конструкция весла для самодельной лодки:

1 - веретено (дюралюминий, труба диаметром 22); 2 - лопасть (дюралюминий, лист s2); 3 - заклёпки (3 шт.)


После изготовления макета нанёс разметку на лист металла и начал его кроить в несколько приемов. Принцип «семь раз отмерь, один раз отрежь» в этом деле посчитал неприемлемым и использовал противоположный подход - отмерив и разметив один раз, кроить металл стал сначала с большими, чем требовалось, припусками, не прорезая сразу до конца линий разметки. Постепенно подгибая и подгоняя друг к другу сопрягаемые части, понемногу урезал припуски, прорезал линии разметки. Отмечу: эту операцию лучше выполнять с помощником.

Соединение швов-стыков (припусков с листом) производил алюминиевыми заклёпками с полукруглой головкой и диаметром стержня 3 мм. Соответствующие отверстия под них сверлил одновременно в обеих соединяемых частях и деталях на корме по месту в шахматном порядке (в два ряда).


Перед клепкой поверхности промазывал густотёртой краской.


Чтобы не использовать материал на транец от этого же листа дюралюминия, подобрал другой - толщиной 5 мм. Клепочных работ при этом немного прибавилось, но зато длина лодки оказалась максимально возможной и теперь в лодку могут смело усаживаться два человека с необходимым для рыбалки или охоты снаряжением.


Первоначально плавсредство задумывалось очень простой формы: корпус в виде прямоугольного параллелепипеда (с отвесными бортами) и носом впереди в виде призмы. В ходе же сборки корпуса ещё до установки транца обнаружилось, что борта у лодки разваливались (отходили в стороны) под собственной тяжестью, а днище на корме при поднятии корпуса прогибалось. При этом нос у лодки приподнимался, а верх бортов в носовой части закруглялся. Однако все это меня не огорчило - такие перемены придавали лодке более привлекательный вид. Тогда транец я вырезал не прямоугольным, а фигурным. В результате лодка приобрела слегка разваленные борта, приподнятый нос и небольшую килеватость. Последняя, кстати, по теории, должна была улучшить устойчивость лодки на курсе, что в эксплуатации и произошло.


Вдоль верхней кромки бортов смонтировал планшири из еловых досок сечением 100x15 мм. На плавсредстве они служат и стрингерами и привалочными брусьями. В носу на переднем транце они соединены бимсом - поперечной балкой для опоры палубы. В носовой части планширь из-за большой кривизны сделан составным, а под стыки установлены и прикреплены подложки из такой же доски. На всём протяжении борта к планширю прибиты оцинкованными гвоздями. Еще один бимс смонтирован между планширями у задней кромки палубного настила, выполненного из 1,5-мм дюралюминиевого листа.


Сама кромка палубы отбортована, чтобы попавшая на настил вода стекала за борт. На корме планшири с бортами и транцами соединены косынками, выгнутыми из такого же 1,5-мм дюралюминиевого листа. Здесь на уголковых кронштейнах, приклёпанных к бортам, установлена банка пассажира. Таким же образом, но только в срединной части лодки смонтирована банка гребца. При всей простоте оборудования лодки у этой банки имеется спинка. Но так как при движении она только мешает гребцу, спинка складывается (откидывается вперед) и устанавливается тыльной стороной заподлицо с поверхностью банки (как у «Казанки»). Поднимается же спинка тогда, когда гребец отдыхает или удит рыбу.


И последнее. Весла самодельные, хотя лопасти взяты от вёсел лодки «Казанки». Веретена - из дюралюминиевой трубы диаметром 22 мм. В нижней части трубы разрезаны вдоль пополам, концы расплющены. В прорези вставлены лопасти и приклепаны.


Уключины - обычные двурогие вилки с приваренными к ним штырями. Штыри вставляются во втулки, приклёпанные к бортам под планширями. Чтобы отверстия в планширях не разрабатывались, в этом месте к ним прикреплены стальные накладки. Весла в уключинах удерживаются болтами М5, вставленными в сквозные отверстия, просверленные одновременно в рожках вилок и трубах веретён.

Все деревянные детали лодки пропитаны горячей олифой за два раза, а корпус снаружи покрашен краской в «защитный» цвет. Для непотопляемости плавсредства форпик (ниша под палубным настилом) забит пенопластом.


Помните о своей безопасности: выходить на воду в такой лодке можно только надев на себя индивидуальное спасательное средство: жилет или нагрудник.

Похожие самоделки

Имя:*
E-Mail:


Песочница RSSРеклама на сайтеFreeseller.ru - Полезные самоделки
Copyright © 2008-2025