Инженер Г. Черненко разработал конструкцию походной ветроэлектростанции (ПВЭС). Он использует ее в поездках на дачу и в туристических походах для питания транзисторного приемника и освещения туристской палатки.
Вот что он пишет:
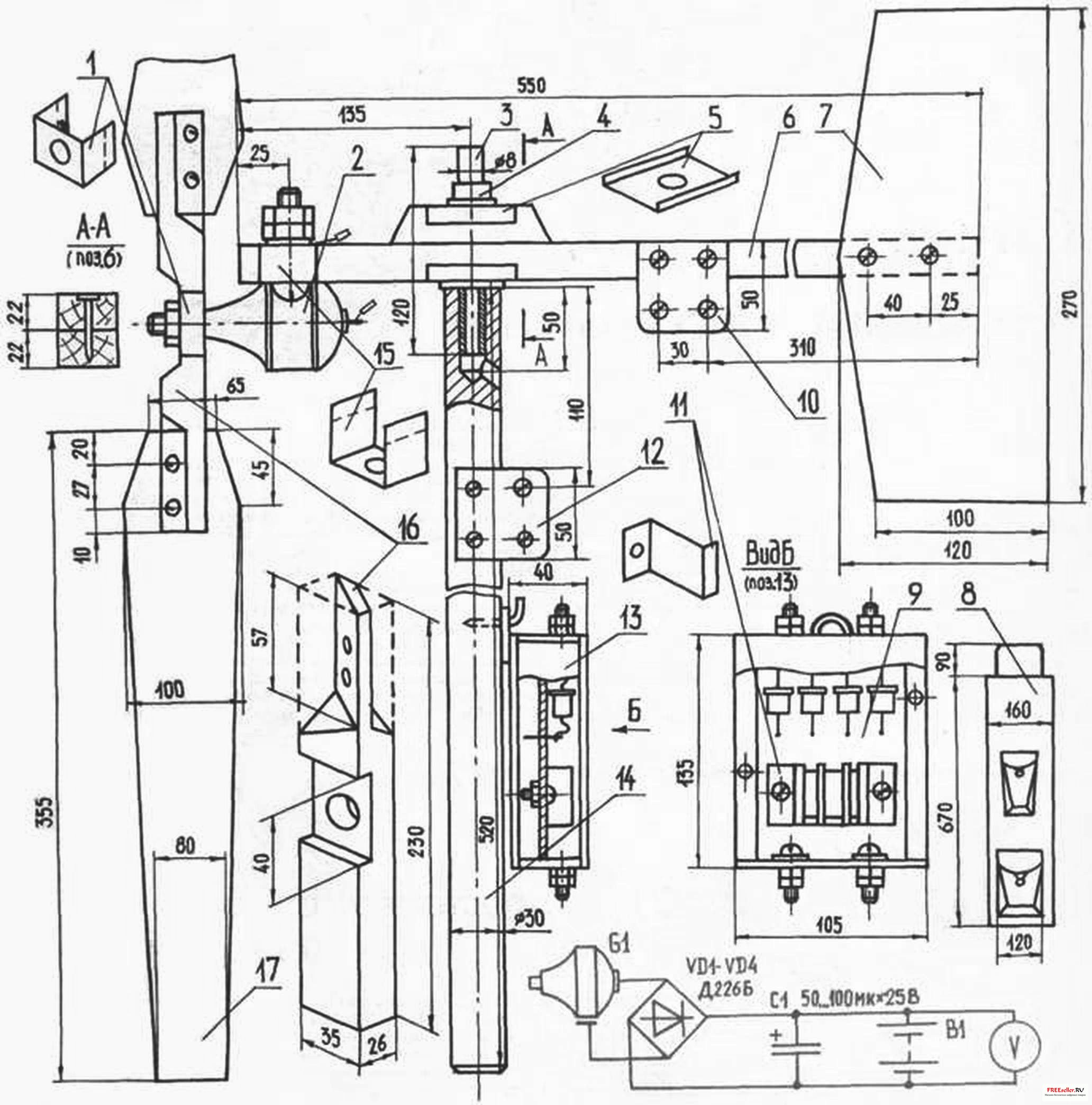
Моя ПВЭС проста в изготовлении, не требует особых материалов. Электрическим генератором служит велосипедная «динамка», вал которой вращается с помощью пропеллера. Лопасти пропеллера 17 вырезаются из фанеры толщиной 3 мм и крепятся винтами М4 к втулке 16, выстроганной из деревянного бруска.
При изготовлении втулки надо учитывать следующее: лопасти устанавливают так, чтобы пропеллер вращался по часовой стрелке. В середине втулки сделайте отверстие диаметром немного меньшим, чем диаметр шкива генератора. В этом месте втулка усиливается металлической накладкой 1, которая прибивается мелкими гвоздями. Шкив во втулку надо запрессовать. Пропеллер накручивается на вал генератора и закрепляется гайкой.
Штангу 6 я изготовил из деревянной рейки. На переднем конце ее сделал выемку и просверлил отверстие для крепления генератора. Выемку усилил металлической накладкой 15, прибив ее к штанге.
На заднем конце штанги двумя шурупами закрепил хвостовик 7, вырезанный из фанеры толщиной 3 мм.
Штангу надел на полую ось-трубку 3, для чего в штанге просверлил отверстие по диаметру трубки. Сверху и снизу прибил накладки 5 из жести. Штангу закрепил на оси с помощью кольца 4, изготовленного из отрезка резиновой трубки. Надетая на трубку, штанга должна легко поворачиваться при изменении направления ветра.
Зарядное устройство собрал на плате 9, которая помещается в коробку 13. Эту коробку сколотил из двух дощечек и трех фанерок. Фанерную крышку коробки привинтил шурупами.
Все деревянные детали ВЭС следует дважды покрасить масляной краской или нитрокраской для защиты от влаги.
Генератор ПВЭС работает на зарядку аккумуляторной батареи. Переменный ток, вырабатываемый «динамкой», выпрямляется с помощью моста из четырех диодов с током не менее 100 мА. Выпрямленный ток поступает на зарядку трех аккумуляторных элементов типа Д-0,26, которые собираются в батарею и вставляются между зажимами 13, изготовленными из латуни или жести. Параллельно выпрямителю надо подсоединить электролитический конденсатор емкостью 50-100 мкФ. Он сгладит пульсацию. Для измерения напряжения следует приобрести вольтметр на 10 В.
Время зарядки аккумуляторов зависит от величины напряжения, которое дает «динамка» или вернее - от силы ветра. Чем сильнее ветер, тем быстрее произойдет зарядка. У меня она занимает несколько часов.
Провода, идущие от генератора, я сначала подсоединил к винтам клеммника 10, выполненного из изоляционного материала, далее пропустил через трубку 3, и затем подсоединил к другому клеммнику 12 на опорной стойке 14 и лишь после этого подключил к выходным клеммам зарядного устройства 13, закрепленного на стойке.
Рис. 1 Походная ветроэлектростанция:
1, 5, 15 - накладки, 2 - генератор, 3 - трубка, 4 - резиновое кольцо, б - штанга, 7 - хвостовик, 8 - чехол, 9 - плата зарядного устройства, 10,12 - клеммники, 11 - зажим, 13 - коробка зарядного устройства, 14 - опорная стойка, 16 - втулка, 17 - лопасть пропеллера.
В рабочем положении ПВЭС опорная стойка 14 привязывается или прибивается к временному опорному шесту.
Чтобы использовать ПВЭС для освещения, я придумал специальное устройство. Оно состоит из корпуса от электрического фонарика, в который вместо батареек вставил деревянный вкладыш. Один провод идет от лампочки через отверстие в крышке корпуса, второй крепится к корпусу снаружи. Оба провода подключаются к зарядному устройству. Моя ПВЭС компактна и весит около 1,5 кг, быстро разбирается: отвинчивается пропеллер, снимается лопасть, штанга снимается с оси, отсоединяется хвостовик. После этого части ПВЭС укладываются в чехол 8 из плотной материи. В чехле есть карманы для фонарика и зарядного устройства. Желательно пришить к чехлу ремень, чтобы носить ПВЭС через плечо.
Книга в помощь:

Альтернативные источники энергии - ветер и солнце являются постоянно возобновляемыми, практически вечными видами энергии.
В данной книге автор раскрывает особенности современных преобразователей энергии солнца и ветра, их выбора, строения и установки. Целая глава книги посвящена нетрадиционным радиоэлектронным конструкциям.
Издание предназначено для широкого круга читателей, стремящихся к самостоятельному техническому творчеству, интересующихся радиотехникой, нетрадиционными источниками питания, солнечными батареями и ветрогенераторами в эпоху всеобщей экономии и оптимизации издержек.
В приложениях даны справочные данные и другая полезная информация.
