
Гидроэлектростанция состоит из лёгких турбин - гидровингроторов, нанизанных в виде гирлянды на тросе, переброшенном через реку. Один конец троса закрепляется в опорном подшипнике, второй - вращает ротор генератора. Трос в этом случае играет роль своеобразного вала, вращательное движение которого передается к генератору.
Мощность Р, которую можно получить от такой гидростанции, подсчитывается по формуле:
P=0,15*DLV3K ,
где
Число оборотов n вингроторной гирлянды примерно равно
n=0,3*V/D
На рисунках помещён внешний вид такой микрогэс и основные детали гидростанции.
Каждый гидровингротор состоит из двух смещённых относительно друг друга полуцилиндров 11. При погружении гидровингротора в поток воды вследствие разности гидравлических давлений на его поверхности создаётся крутящий момент (относительно оси вращения).
Одновременно гидровингротор оказывает и значительное лобовое сопротивление потоку, благодаря чему трос гирлянды 1 натягивается и выгибается в направлении течения реки. Гидровингроторы крепятся к тросу попарно, при этом каждая пара имеет общий узел крепления 13, 14, и в каждой из них один гидровингротор развёрнут по отношению к другому на 90°. Это необходимо для создания равномерного вращения троса, а следовательно, и вала генератора.
Реакция сил натяжения троса воспринимается береговыми опорами, которые состоят из подпорных досок 6, укреплённых в грунте, и опорных лент 3, имеющих отверстия, через которые забиваются в грунт клинья 4,5, удерживающие опоры. На раме 18 установлены редукторная и генераторная части установки. Свободная опора на противоположном берегу имеет крюк 7 и узел опорного подшипника 6, 9, 10, обеспечивающего свободное вращение троса под разными углами к направлению потока воды. Крепление второго конца троса также шарнирное.
Снимая трос с опоры, в течение первых 20 - 30 сек не следует брать его в руки, так как он может резко раскрутиться. Второй конец троса перекинут через шкив 17 и закреплён стяжками. Шкив закреплён на оси редуктора (механизма привода) при помощи обоймы 16 и болтов. Трос работает на скручивание, и только в этом случае он передает мощность с турбин на генератор.
Одна гирлянда турбин обеспечивает мощность от нескольких десятков ватт до 5-15 киловатт. Можно объединять гирлянды, заставляя работать их на общую нагрузку и повышая тем самым мощность гидростанции.
В этом случае узел свободной опоры (рис. 1 в рамке) состоит из жёстких профилей 14, соединённых между собой накладками 15 и закреплённых кольями 17, причём колья опираются на вкопанные деревянные брусья 13. У свободной опоры гирлянды крепятся с помощью крюков 16 и обойм упорного подшипника 18. Этот узел аналогичен узлу крепления одной гирлянды. Генератор устанавливается на площадке 11, расположенной со стороны первой линии. Площадка жёстко соединена с корпусом станины 8 трансмиссионного вала 5, Вал 5 соединён со станиной посредством опор 4. Вращение троса гирлянд передается по трансмиссионному валу полуперекрещивающимся ремнём, охватывающим вал 5 и шкив 1. Однако для установки гидростанций больших мощностей лучше применять шестерёнчатое зацепление посредством пар конических шестерёнок./p>
Генератор 2 крепится либо непосредственно через переходную муфту к трансмиссионному валу 5, либо имеет ступень редукции 3. В остальном устройство понятно из чертежей. Для использования вертикально расположенного генератора, который может быть установлен на высоте безопасной при подъёме уровня воды, шестерни 3 можно выполнить коническими, с углом зацепления 45°. Всю трансмиссию и генератор можно помещать в водонепроницаемый кожух типа воздушного колокола.
В таблице приведены названия и основные данные наиболее распространённых генераторов, которые могут быть использованы на микрогэс.
В качестве примера описанных микрогэс может служить станция, установленная на 1,5 км ниже г. Старая Руза на Москве-реке. В этом месте средняя скорость течения 1,5 м/сек, глубина 40-50 см. Активная длина гирлянды равнялась 47 м, длина вингроторов в паре - 1 м с учётом просвета, диаметр гирлянды - 0,3 м. Гирлянда развивала мощность 8,6-8,8 кВт и вращала с полной нагрузкой генератор 6 кВт (МП 543 1/2, n=428 об/мин). КПД генератора был равен 0,7, диаметр гирлянды - 17,3 мм,
При менее мощных гидростанциях (1-2 кВт), работающих на скоростях 1,5-2 м сек, можно применять трос диаметром 10-12 мм.
Приводим данные расчёта такой электростанции. Для вращения генератора ГПМ-130 (от ветроагрегата ВЭ-2) требуется мощность 260 Вт.
При скорости вращения 500 об/мин и скорости течении реки 1,5 м/сек длина гирлянды должна быть равна 3 м, диаметр каждого вингротора 200 мм, а длина - 450 мм. Для обеспечения необходимой мощности потребуется 3 пары гидровингроторов, установленных на расстоянии 50 мм друг от друга-Скорость вращения гирлянды при этом будет равна 135 об/мин, и, следовательно, нужен редуктор, повышающий число оборотов в 3.7 раза.
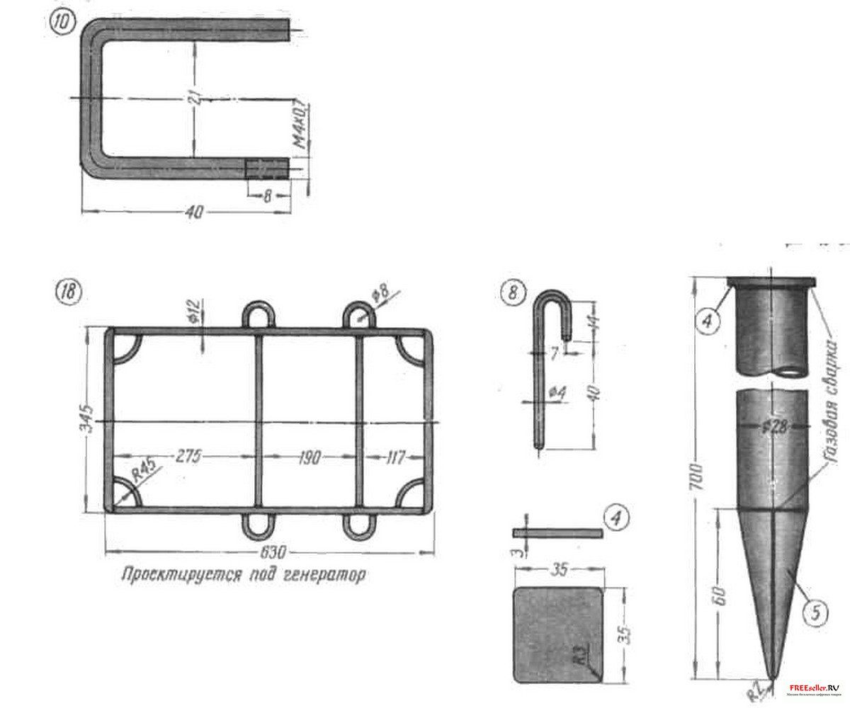
На рисунках приведены чертами деталей и узлов гирляндной гидростанции.
Конструкция отдельных узлов и деталей может быть без ущерба изменена. Рама (деталь 18) для генератора, например, может быть выполнена из деревянных брусьев, конфигурацию детали 17 можно упростить, выполнив шкив из трёх дисков, склёпанных вместе, и т.д.
На рисунке 1, 2, 3 показана многогирляндная ГЭС и отдельные её узлы.
Более подробную информацию по проектированию и строительству гирлядной мини ГЭС своими руками Вы можете узнать из книги: Б.С. Блинова «Гирляндная ГЭС»