
Мы привыкли к тому, что у дома должно быть как минимум четыре стены. А если две! Трудно такое представить. И тем не менее этот садовый домик — «шалаш» выглядит очень симпатичным. Он и обойдется вам намного дешевле традиционных — меньше потребуется материала, и построить его можно куда быстрее.
Садовый домик, спроектированный по схеме «шалаш», отличается от традиционных построек тем, что у него нет стен: их заменяет увеличенная крыша, под нею и располагаются все жилые помещения. Благодаря простому конструктивному решению такое загородное жилище можно быстро построить, н обойдется оно намного дешевле.
Конечно, двускатная крыша, создающая оригинальный внешний вид постройки, несколько уменьшает внутреннее пространство, но зато она сочетает в себе одновременно и кровлю, и стены, которые не требуют дополнительной наружной отделки
Прежде чем приступать к строительству, необходимо распланировать территорию: дом следует располагать ближе к входу на участок, чтобы он не занимал место, предназначенное для выращивания овощей и фруктов. Строительство ведется в два этапа: вначале закладывают фундамент, а затем надстраивают н оборудуют основной объем.
ФУНДАМЕНТ - основа любого дома. Это самый сложный и материалоемкий элемент конструкции. От того, как он заложен, зависит долговечность всего сооружения. В предлагаемом проекте используется ленточный фундамент из бутобетона, расположенный по периметру, в сочетании со столбчатыми опорами для несущих прогонов и открытой веранды.
Площадку под будущий дом необходимо разровнять, и с помощью колышков и шнуров разметить основные оси. Затем согласно плану фундамента выкапывают траншеи глубиной н шириной, немного превышающими проектные. Дно последовательно засыпают гравием и песком до нижней отметки заложения. Каждый слой тщательно утрамбовывается.
По окончании земляных работ вдоль каждой стены траншеи устанавливают щиты опалубки, сколоченные из досок, фанеры и т. п. Опалубки в верхней, надземной части соединяют досками так, чтобы рас стояние между внутренними стенками было 300 мм.
Кладку бутовых камней ведут горизонтальными рядами с перевязкой швов. Пер вый ряд из наиболее крупных булыжников укладывают насухо и. тщательно утрамбовав, заливают бетоном М100. Последующие ряды как бы втапливают в раствор, покрывающий предыдущие. Кладку и заливку ведут до проектной отметки -0,230 Напомним, что за отметку 0,000 условно принят уровень чистого пола первого этажа. Наиболее ответственный момент установка закладных деталей. От точности их расположения зависит монтаж несущих прогонов. Поэтому перед тем как опускать эти металлические штыри в бетон, необходимо разметить места их установки- отступ от основных осей А, Б и дополнительных (параллельных им) должен составлять 25 мм.
В местах установки закладных деталей применяется мелкий заполнитель Готовый фундамент выдерживают в опалубке около трех суток, периодически смачивая его ведой, чтобы не образовалось трещин. После удаления опалубки пазухи (пустоты между фундаментом и грунтом) засыпают песком, а по периметру всего здания для отвода дождевых и талых вод выполняют отмостку шириной 700 мм. Причем в направлении осей 1,2, с отступом от фундамента на 350 мм Конструкция отмостки может быть следующей: слой песка (100-150 мм), по которому уложен слой щебня (около 100 мм), и покрытие бетоном или асфальтом с небольшим уклоном от здания.
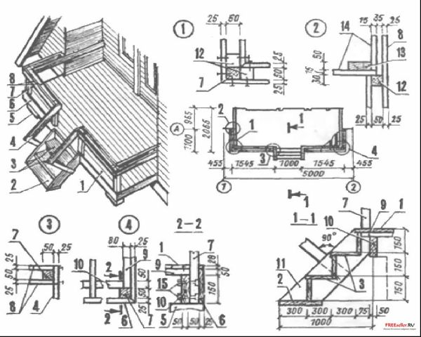
Рис. 2. Конструктивная схема садового домика:
1 - ленточный фундамент, 2 - столбчатый фундамент, 3 - несущие прогоны веранды, 4 - несущие прогоны дома, 5 - закладные детали, 6 - лобовая доска, 7 - доски обрешетки, 8 - стропила, 9 - ветровые связи, 10 - накладки, II - Коньковая доска, 12 - волнистые асбестоцементные листы, 13 - рубероид, 14 - стальные накладки, 15 - кровельное оцинкованное железо, 16 - доски сечением 100Х Х50 мм, 17 - болты MI2, 18 - стойки сечением 120X50 мм, 19 - уголок № 5, 20 - балки перекрытии, 21 - стойки дверных проемов, 22 - брус сечением 50X50 мм.
Рис. 3. Основные проекции и планировка садового домика:
1 - фасады (между осями 1-2 и А-Б), 2 - план (А - жилая комната, Б - кухня-прихожая, В - открыт 1я веранда).
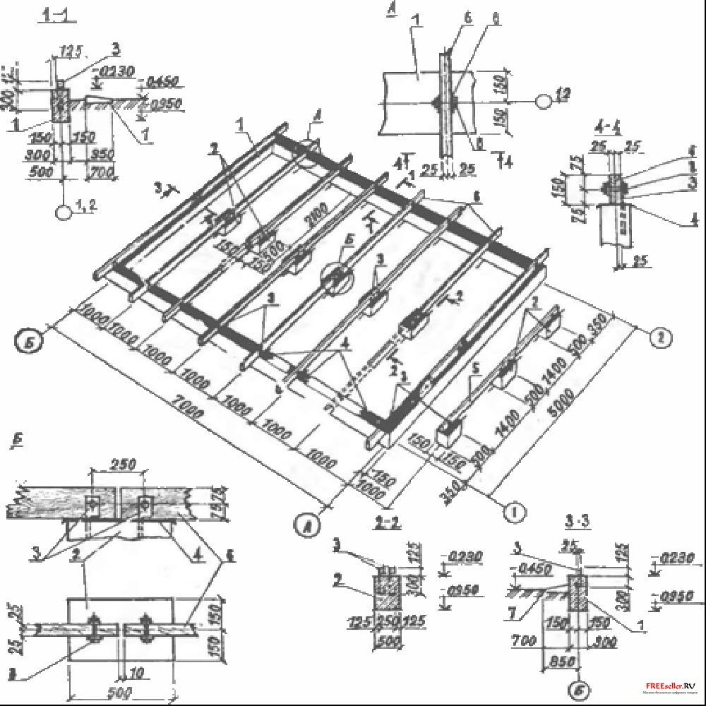
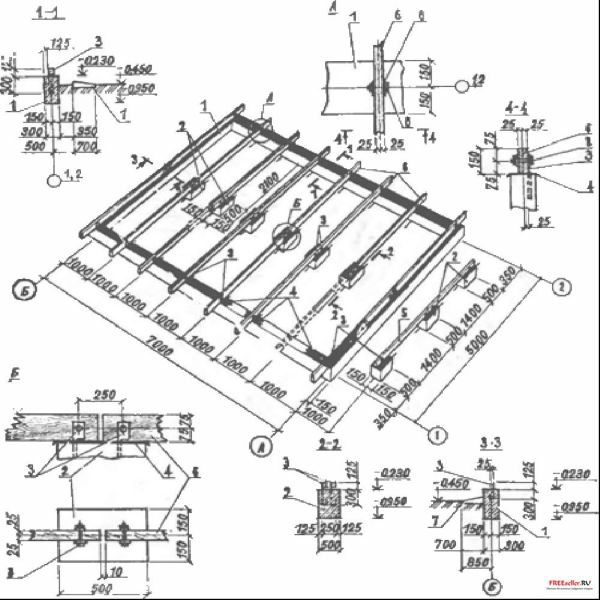
Рис. 5. Схема раскладки лаг и настила полов:
I - столбчатый фундамент открытой веранды, 2 - ленточный фундамент дома, 3 - несущие прогоны, 4 - кровля, 5 - обрешетка, в - стропильные ноги, 7 - стойки, 8 - доски пола 9 - лаги, 10 - металлическая накладка.
Отделочные работы
После возведения крыши приступают к отделочным работам. Прежде всего необходимо настелить пол в помещениях и на открытой веранде. Для этого по несущим прогонам стропильных рам укладывают лаги с шагом около 500 мм. В целях экономии длинномерных брусьев необязательно подбирать лаги по длине всего дома: их можно сделать составными Каждый брус крепится к нижним балкам перекрытия гвоздями. Поверх лаг, но перпендикулярно им раскладывают доски чистого пола: хорошо использовать так называемые половые рейки толщиной 28 мм, так как каждая доска имеет шип с одной и паз с другой стороны. Такое соединение в сочетании с гвоздями надежно зафиксирует каждую доску и придаст всему полу дополнительную жесткость.
По завершении работ с полом и настилом террасы начинают обшивку фасадных стен. Нарядный внешний вид домику придадут доски, прибитые горизонтально. Для защиты от дождя лучше использовать доски с четвертями, а если их нет, то подойдут и обычные, прибитые внахлест. И в том, и в другом случае работу ведут снизу вверх.
коньковая накладка, 7 - покрытие кровли (волнистые асбоцементные листы), 8 - балка перекрытия, 9 - стропильные ноги, 10 - коробка дверного блока, II - наличники оконных блоков, 12 - плинтус, 13 - перегородка, 14 - наличник дверного блока Д021-9А, 15 - оконные блоки ОН15-15, 16 - плиты накрытия стен, 17 - доска чистого пола, 18 - лаги, 19 - брусок 25X25 им, 20 - ДВП изоляционная, 21 - ДВП твердая (оргалит), 22 - доска 25Х 100 мм, 23 - стойка, 24 - наружные доски фасада так как каждая последующая доска частично перекрывает предыдущую.
Для обшивки всех стен изнутри используется двойное покрытие: из изоляционной мягкой древесно-волокнистой плиты толщиной 25 мм и тонкой твердой ДВП (оргалит) толщиной 4 мм. При эксплуатации домика в период с весны до осени утеплителя из мягкой ДВП будет достаточно. Если же предполагается использовать постройку и зимой, то необходимо дополнительно утеплить стены минеральной ватой.
Листовое покрытие стен крепится к специальным брускам, прибитым вдоль несущих конструкций, с отступом от лицевой кромки их на 25 мм, то есть на толщину слоя изоляционного ДВП. Оргалит прибивают поверх утеплителя к основным конструктивным элементам. Стыки между листами заделывают рейками-накладками, а угловые - плинтусом.
Шалашная конструкция дома позволяет разместить в стенах различные шкафы и встроенную мебель: все это зависит от фантазии строителя.
После обивки внутренних стен и перегородок в подготовленные проемы вставляют дверные и оконные блоки. Заполнив паклей или ветошью щели между оконными (дверными) коробками и проемами, прибивают наличники, подоконники. Затем устанавливают металлические сливы и начинают обстраивать открытую веранду.
Открытая веранда
Так как настил и стены веранды были заложены вместе с полом и кровлей, остается лишь установить ограждение и лестницу. Конструкция последней не представляет сложностей. Собирается она отдельно и монтируется по месту. Ограждение состоит из четырех стоек, закрепляемых болтами к внешней стороне несущей балки, и парных досок, соединяющих их. В нижней части по периметру всей площадки прибивают цокольную доску.
Рис. 6. Открытая веранда:
I - доски настила, 2 - опорная лапа лестницы, 3 - ступеньки, 4 - ограждение лестницы, 5 - столбчатый фундамент, 6 - цокольная доска, 7 - стойка ограждения, 8 - ограждение, 9 - лаги 10 - несущая балка,
II - тетива лестницы, 12 - брусок, 13 - стойка каркаса, 14 - доски наружной обшивки, 15 - крепежный болт с гайкой (М10).
Окраска
Для окраски деревянного дома необходимо заранее подготовить соответствующие материалы Внутренние стены помещения можно окрасить эмалевыми или водоэмульсионными красками, подбирая светлые тона, так как помещения имеют достаточную глубину, окна располагаются лишь в одной из стен. Наружные поверхности фасадных сторон лучше всего покрыть паркетным лаком: ведь сама древесина имеет приятный цвет и текстуру, а лаковое покрытие надежно защитит ее от воздействий стихии и времени
Рис. 7. Схема наружной и внутренней отделки:
1 - лобовая доска, 2 - доска отделки свесов, 3 - доска обрешетки, 4 - оконный блок О HI 5-09, 5 - доски фронтона, 6 - коньковая накладка, 7 - покрытие кровли (волнистые асбоцементные листы), 8 - балка перекрытия, 9 - стропильные ноги, 10 - коробка дверного блока, II - наличники оконных блоков, 12 - плинтус, 13 - перегородка, 14 - наличник дверного блока Д021-9А, 15 - оконные блоки ОН 15-15, 16 - плиты покрытия стен, 17 - доска чистого пола, 18 - лаги, 19 - брусок 25X25 мм, 20 - ДВП изоляционная, 21 - ДВП твердая (оргалит), 22 - доска 25Х 100 мм, 23 - стойка, 24 - наружные доски фасада.