Как правильно подключить полотенцесушитель

  • Опубликовано: 23 января 2026

Как правильно подключить водяной полотенцесушитель к стояку чтобы он работал.


Как правильно подключить водяной полотенцесушитель к стояку чтобы он работал.


Даже самый качественный полотенцесушитель будет подтекать или вообще перестанет работать, если его неправильно подключить. Неквалифицированное вмешательство в работу общедомовых систем – большая проблема при установке или переделке полотенцесушителей, подключённых к стоякам горячего водоснабжения.


В этой статье будет рассказано о принципах работы полотенцесушителей, о примерах грамотного подключения и о том, как лучше всего избежать технических ошибок.


Старые типы полотенцесушителей

Ещё лет двадцать назад полотенцесушитель «от застройщика» представлял из себя монолитную трубу стояка, изогнутую в виде букв П или М. Полотенцесушитель выполнял роль компенсационной петли и нивелировал линейные тепловые расширения на стояке.


П- и M-образный полотенцесушитель как часть стоякаП образный полотенцесушитель как часть стояка


П- и M-образный полотенцесушитель как часть стоякаМ образный полотенцесушитель как часть стояка.


Несмотря на неказистый внешний вид, этот тип имел неоспоримые преимущества: был постоянно горячим, не вносил сколь-нибудь заметного гидравлического сопротивления и никак не позволял жильцам нарушить работу стояка горячего водоснабжения.


Однако время шло, и жильцы в старом жилом фонде, меняли старый и некрасивый полотенцесушитель на новый и блестящий.

Установка была удачной, если диаметр полотенцесушителя соответствовал диаметру стояка, а подключение выполнялось без заужений и запорной арматуры (кранов).


Новый полотенцесушитель, являющийся частью стояка (правильная установка)

Новый полотенцесушитель, являющийся частью стояка (правильная установка)


При неудачном раскладе результат получался следующий:


Новый полотенцесушитель, являющийся частью стояка (неправильная установка)

Новый полотенцесушитель, являющийся частью стояка (неправильная установка)


Внимательные читатели заметят, что в стояке появилось четыре лишних заужения от применённых фитингов. 


Внутреннее сечение фитинга для металлополимерных труб

Внутреннее сечение фитинга для металлополимерных труб.


Но и это – не самый худший случай. Бывает и такое:

Новый полотенцесушитель, являющийся частью стояка (категорически запрещено)

Новый полотенцесушитель, являющийся частью стояка (категорически запрещено)


Кроме уже упоминавшихся выше заужений, добавлены отсечные краны. При перекрытии любого из них в стояке полностью останавливается циркуляция, давление в следующих по направлению подачи квартирах падает, стояк при отсутствии водоразбора быстро остывает, при открытии смесителей приходится долго сливать холодную воду. Не самая приятная картина, сулящая ещё и разборки с соседями!


Важно помнить: установка запорно-регулировочной арматуры на стояках категорически запрещена!


Отводы от стояка и байпас для полотенцесушителей


Со временем застройщики стали применять более современные технологии и вместо компенсационной петли начали делать два отвода от стояка для подключения полотенцесушителя на выбор самих жильцов.


Между отводами в этом случае всегда присутствует байпас – замыкающий участок трубы с диаметром, равным диаметру стояка или на один шаг меньше.


Байпас у полотенцесушителя решает несколько задач:

  1. Сохранение нормальной скорости циркуляции по всему стояку горячей воды. Принудительная циркуляция в стояке обеспечивает подачу равномерно горячей воды (по нормам — не менее 60°C) в любую квартиру, на любом этаже, независимо от её удалённости от начала подачи в стояк, времени суток и от наличия или отсутствия водоразбора в квартирах жильцов.
  2. Через один полотенцесушитель проходит только часть общего потока теплоносителя (воды). Другая часть идёт мимо, сохраняя больше тепла для следующих санузлов, ведь от одного стояка могут работать один-два десятка полотенцесушителей.
  3. Возможно полное отключение полотенцесушителя или регулировка его температуры жильцами без негативных последствий для остальных квартир. Возможность регулировки температуры требует установки дополнительного регулировочного вентиля на один из отводов, т. к. с помощью шарового крана регулировать что-либо невозможно.

Но и тут есть проблема: высота отводов от пола, расстояние между ними, диаметр и тип байпаса никак не нормированы. Это приводит к массовым проблемам при подключении полотенцесушителей, о них будет рассказано чуть ниже.


Три основных варианта исполнения байпаса с отводами:

1. Несмещённый и не зауженный байпас. Отводы приварены прямо к трубе стояка. Между отводами геометрия стояка (это диаметр трубы и её направление) остаётся неизменной. Часто можно услышать «ой, а у меня байпаса нет!» – но на самом деле тут байпас – это просто часть стояка.

Несмещённый и незауженный байпас полотенцесушителя (стояк из оцинковки)

Несмещённый и не зауженный байпас полотенцесушителя (стояк из оцинковки)


Несмещённый и незауженный байпас полотенцесушителя (стояк из нержавейки) 

Несмещённый и не зауженный байпас полотенцесушителя (стояк из нержавейки) 


2. Несмещённый зауженный байпас. Между отводами уменьшается диаметр стояка на один типоразмер трубы (например, для стояка 1” байпас выполняется 3/4”), сам стояк по-прежнему остаётся прямым. Пожалуй самый часто встречающийся вариант, который, увы, несёт кучу проблем при определённых условиях.


Несмещённый зауженный байпас полотенцесушителя (стояк из оцинковки)

Несмещённый зауженный байпас полотенцесушителя (стояк из оцинковки)


3. Смещённый зауженный или не зауженный байпас. Между отводами участок стояка сдвигается в сторону полотенцесушителя, а смещённый участок может быть дополнительно заужен на один шаг диаметра. Также проблемный вариант в очень многих случаях.


Смещённый незауженный байпас полотенцесушителя (стояк из оцинковки) 

Смещённый не зауженный байпас полотенцесушителя (стояк из оцинковки)


А вот ориентировочные коэффициенты затекания воды в полотенцесушитель для разных конфигураций байпаса. Помните, что они справедливы только при выборе однозначно рабочей схемы подключения из представленных далее вариантов.

  • Смещённый байпас: 0,33-0,4.
  • Смещённый и одновременно зауженный на один шаг диаметра байпас: 0,48-0,52.
  • Несмещённый зауженный байпас: 0,4.

То есть смещение байпаса по эффективности практически равнозначно его сужению.


Поговорим о физике: гравитационный насос в полотенцесушителе

Если работоспособность полотенцесушителя с зауженным или смещённым байпасом ещё как-то укладывается в головах сантехников, мыслящих категориями «продавит – не продавит», то схема без смещения байпаса и без заужения стояка между отводами повергает их в полный ступор: «Вся вода проходит мимо полотенчика! Туда ж не затечёт! Прибор никогда не будет работать!»


Однако приборы при таком подключении прекрасно работают. Почему? Всё просто: в основе работоспособности полотенцесушителя лежит так называемый гравитационный насос. Остывающий теплоноситель (вода) стремится под действием гравитации вниз, так как обладает большей плотностью относительно более горячего теплоносителя. В итоге из нижней точки полотенцесушителя охлаждённая вода выталкивается в стояк – и одновременно в верхнюю точку прибора из стояка поступает более горячий теплоноситель. Он снова охлаждается и уходит вниз – вот и получается гравитационный насос, вечным двигателем которому служит охлаждаемая горячая вода.


ермограмма радиатора, работающего исключительно на естественной циркуляции

Термограмма радиатора, работающего исключительно на естественной циркуляции.


Термограмма полотенцесушителя, работающего на естественной циркуляции 

Термограмма полотенцесушителя, работающего на естественной циркуляции.

Как правильно подключить водяной полотенцесушитель?

Рассмотрим несколько гарантированно рабочих схем подключения этого прибора.

Схема №1

(Боковое или диагональное подключение, не зауженный несмещённый байпас)


Данная схема обеспечивает подачу теплоносителя в верхнюю часть и выпуск остывшего теплоносителя обратно в стояк снизу. Циркуляция через полотенцесушитель обеспечивается только гравитационным напором остывающей в нём воды.

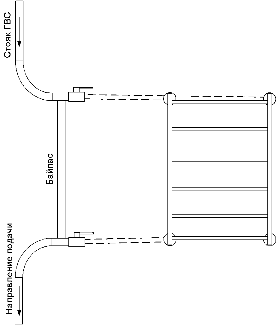
оковое подключение лесенки, работающее на естественной циркуляции, без заужения и без смещения байпаса

Боковое подключение лесенки, работающее на естественной циркуляции, без заужения и без смещения байпаса.


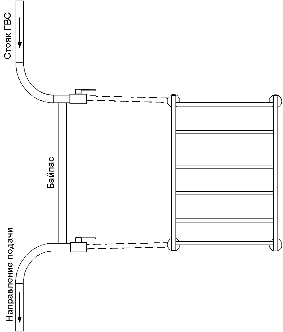
иагональное подключение лесенки, работающее на естественной циркуляции, без заужения и без смещения байпаса

Диагональное подключение лесенки, работающее на естественной циркуляции, без заужения и без смещения байпаса.


Диагональный вариант подключения полотенцесушителя не имеют никаких преимуществ перед боковым. 

иагональное подключение лесенки, работающее на естественной циркуляции, без заужения и без смещения байпаса

Диагональное подключение лесенки, работающее на естественной циркуляции, без заужения и без смещения байпаса.


Эта схема подключения – универсальная:

  • Работает при любом направлении подачи в стояке.
  • Не зависит от скорости циркуляции в стояке.
  • Не требуется стравливание воздуха из полотенцесушителя после отключения воды.
  • Удалённость от стояка – вплоть до 4-5 метров.

Условия работоспособности схемы:

  • Нижний отвод стояка должен быть ниже низа полотенцесушителя или наравне с ним, а верхний отвод стояка – выше верха прибора или наравне с ним.
  • При нижней подаче между отводами однозначно не должно быть никакого заужения. Оно будет препятствовать работе полотенцесушителя вплоть до полной неработоспособности! При верхней подаче допустимо в заужение байпаса на один шаг диаметра стояка (об этом варианте будет рассказано подробно чуть ниже), но для работы прибора оно не требуется.

Подключение по такой схеме с нижней подачей в стояке очень критично к качеству монтажа. Вредят её работе любые заужения между отводами, которые, например, возникают при нарушении технологии сварки полипропилена. Это перегрев насадок, превышение времени нагрева трубы и фитинга, вдвигание трубы в фитинг с чрезмерным усилием без контроля глубины. Заужения могут возникнуть при наличии сварных швов на стояке между отводами или при наличии смещений трубы стояка относительно своей оси между отводами.


Почему заужение/смещение между отводами при нижней подаче мешает работе полотенцесушителя? Потому что оно создаёт за счёт движения воды в стояке дополнительный перепад давлений (у нижнего отвода – больше, чем у верхнего), что противодействует естественной циркуляции, которая выталкивает воду обратно в стояк через нижний отвод.


Важное замечание: так как естественная циркуляция обеспечивается за счёт остывания воды в приборе, то при таком подключении всегда будет разница температуры между верхом и низом полотенцесушителя. Однако в грамотно смонтированном приборе она составляет всего 3-4°C, которые рукой невозможно почувствовать – выше определённого порога температура воспринимается как «одинаково горячо». Если же разница больше, то либо совершена ошибка при монтаже, либо переоценена температура системы горячего водоснабжения. Постарайтесь измерить температуру горячей воды в системе, а также температуру верхней и нижней части полотенцесушителя.


Допустимые варианты исполнения схемы №1

Боковое подключение (пример верного исполнения)

Боковое подключение (пример верного исполнения)


Весь полотенцесушитель по вертикали размещается строго между отводами, соблюдены верные уклоны подводящих труб, никакие условия работоспособности не нарушены.


Боковое подключение (пример условно допустимого исполнения)

Боковое подключение (пример условно допустимого исполнения)


Полотенцесушитель находится выше верхнего отвода. Потребуется стравливание воздуха из левого верхнего угла прибора. Обычный радиатор не даст этого сделать без очень неудобных ухищрений (например, ослабления накидной гайки верхней водорозетки), выше пунктирной линии будет стоять воздух, и прибор работать не будет.


Для полноценной эксплуатации этого варианта обязательна установка воздушного клапана строго в верхний уголок для подачи воды. Лишь немногие модели полотенцесушителей позволяют это сделать, в частности — бренд «Сунержа» серий «+» («Богема+», «Галант+» и др.).
Воздушный клапан в противоположном углу от точки подключения воды не может стравить весь воздух из прибора!


Схема №2

(Нижнее подключение)


Чуть менее эффективное, чем боковое, но имеет свои преимущества.


Расстояние между отводами – любое, чтобы нормально сварить трубы и навернуть краны так, чтобы их ручки при вращении не мешали друг другу. Например, 15-20 сантиметров.


Нижнее подключение лесенки, работающее на естественной циркуляции, без заужения и без смещения байпаса

Нижнее подключение лесенки, работающее на естественной циркуляции, без заужения и без смещения байпаса.


Нижнее подключение лесенки, работающее на сочетании принудительной и естественной циркуляций, со смещением байпаса

Нижнее подключение лесенки, работающее на сочетании принудительной и естественной циркуляций, со смещением байпаса.


ижнее подключение лесенки, работающее на сочетании принудительной и естественной циркуляций, с сужением байпаса

Нижнее подключение лесенки, работающее на сочетании принудительной и естественной циркуляций, с сужением байпаса.


Преимущества схемы:

  • Работает при любом направлении подачи в стояке.
  • Возможно пустить трубы скрытно под ванной, без штробления стен.

Недостатки схемы:

  • Требуется стравливание воздуха через краны Маевского.
  • Чуть меньшая эффективность по сравнению с боковым подключением.

Условия работоспособности схемы:

  • Верхний отвод стояка со смещённым или зауженным байпасом должен быть ниже низа прибора или наравне с ним. Это гарантирует независимость работы полотенцесушителя от направления подачи. При верхней подаче верхний отвод может быть расположен выше нижней кромки прибора.
  • Нижний отвод обязан быть ниже полотенцесушителя во всех вариантах этой схемы, чтобы не образовывалась яма-грязесборник из подводящей трубы и самого прибора.


Нижнее подключение (пример условно допустимого исполнения)

Нижнее подключение (пример условно допустимого исполнения)


Низ прибора находится между отводами. При нижней подаче в стояке, малой высоте полотенцесушителя или большом расстоянии между отводами эта схема может не работать или работать нестабильно.

Схема №3

(Боковое и диагональное подключения с зауженным и/или смещённым байпасом)


Абсолютное большинство сантехников считают, что между отводами на полотенцесушителе обязательно должно быть сужение – иначе ничего работать не будет. Во-первых, это не так (см. схемы, приведённые выше), а во-вторых, в случае нижней подачи воды в стояке сужение будет мешать работать полотенцесушителю.

Боковое подключение лесенки, работающее на сочетании принудительной и естественной циркуляций, с сужением байпаса

Боковое подключение лесенки, работающее на сочетании принудительной и естественной циркуляций, с сужением байпаса.

Боковое подключение лесенки, работающее на сочетании принудительной и естественной циркуляций, со смещением байпаса

Боковое подключение лесенки, работающее на сочетании принудительной и естественной циркуляций, со смещением байпаса.


Боковое подключение П/M-образного полотенцесушителя, работающее на сочетании принудительной и естественной циркуляций, со смещением байпаса


Боковое подключение П/M-образного полотенцесушителя, работающее на сочетании принудительной и естественной циркуляций, со смещением байпаса.


Боковое подключение П/M-образного полотенцесушителя, работающее на сочетании принудительной и естественной циркуляций, с сужением байпаса

Боковое подключение П/M-образного полотенцесушителя, работающее на сочетании принудительной и естественной циркуляций, с сужением байпаса/

Диагональное подключение лесенки, работающее на сочетании принудительной и естественной циркуляций, с сужением байпаса

Диагональное подключение лесенки, работающее на сочетании принудительной и естественной циркуляций, с сужением байпаса/

Диагональное подключение лесенки, работающее на сочетании принудительной и естественной циркуляций, со смещением байпаса

Диагональное подключение лесенки, работающее на сочетании принудительной и естественной циркуляций, со смещением байпаса. 

 

Диагональное подключение лесенки, работающее на сочетании принудительной и естественной циркуляций, со смещением байпаса


Обратите внимание, что направление подачи в стояке теперь однозначно указано верхним. При нижней подаче эти варианты использовать категорически не рекомендуется!

Преимущества схемы:

  • Отлично работает при верхней подаче в стояке.
  • Не требуется стравливание воздуха из прибора после отключения воды.
  • Удалённость полотенцесушителя от стояка – вплоть до 8-10 метров.

Недостатки схемы

  • Гарантируется стабильная работа только для верхней подачи.

Условия работоспособности схемы:

  • Строго верхняя подача в стояке! В общем случае следует считать направление подачи всегда неизвестным (несмотря на заявления местных сантехников) и использовать любую из универсальных схем, не зависящих от подачи.
  • Нижний отвод стояка должен быть ниже низа прибора или наравне с ним, а верхний отвод стояка – выше верха полотенцесушителя или наравне с ним.

Общие для всех схем правила монтажа полотенцесушителя

Необходимо соблюдать уклон подводящих труб (направление показано на рисунках). Для определённости можно взять перепад в 3-30 мм на метр. При небольших расстояниях от стояка (несколько метров) и большом диаметре подводящих труб (ППР 25-32 мм) допустима строго горизонтальная укладка.


Не должно быть «горбов» на горизонтальных участках! В них будет скапливаться воздух и циркуляция остановится. Провалы допустимы только в небольших пределах, глубокие «ямы» будут мешать циркуляции и станут грязесборниками.


Диаметр труб для обеспечения эффективной циркуляции: не менее ДУ20 (3/4” – для оцинкованной стальной трубы, 25 мм – для хорошего армированного ППР, 20 мм — для трубы из нержавеющей стали), шаровые краны – не менее 3/4”.


Применение труб и кранов меньшего сечения допускается только на подводящих трубах небольшой длины.


Крайне желательно помещение подводящих труб в теплоизоляцию. Это обязательное условие для монтажа при замоноличивании любых пластиковых труб: теплоизоляция обеспечивает их механическую защиту и компенсацию температурных расширений. Она также улучшает работу полотенцесушителя, в который попадает более горячая вода.


Категорически запрещается установка любых кранов на байпасе – это вандализм и вредительство себе и соседям. Перекрытие или чрезмерное сужение байпаса замедляет циркуляцию во всём стояке. При этом:


  • Падает температура горячей воды, так как она успевает остыть, добираясь до потребителя.
  • Радикально ухудшается напор воды во всех квартирах, расположенных далее по направлению подачи. А при определённом расположении отвода горячей воды – и у самого владельца полотенцесушителя. Ведь при сужении байпаса на один типоразмер труб его пропускная способность становится примерно вдвое меньше.
  • Не улучшается эффективность приведённых схем.

Типичные ошибки подключения полотенцесушителя

Нижнее подключение (пример неправильного исполнения)

Нижнее подключение (пример неправильного исполнения).
Нижнее подключение (пример неправильного исполнения)

Нижнее подключение (пример неправильного исполнения)


Полотенцесушитель находится ниже нижнего отвода. Подключённый с подобным нарушением прибор работает, пока не превышена определённая разница высот «нижний отвод – низ полотенцесушителя», тогда циркуляция останавливается.

Нежелательно опускать прибор ниже отводов по двум причинам:


  • Охладившаяся и опустившаяся вниз вода оказывается в ловушке, образованной нижней частью прибора и трубой (застойная зона – от низа полотенцесушителя до нижнего отвода) и плохо выталкивается обратно в стояк, так как на неё давит более лёгкая горячая вода.
  • В получившихся «ямах» из труб будет скапливаться грязь из стояка. В дальнейшем при низком качестве воды можно получить забитую трубу, а также подшламовую коррозию, если грязесборник придётся на участок трубы из металла или на сам прибор.


Боковое подключение (пример неправильного исполнения)

Боковое подключение (пример неправильного исполнения)

Боковое подключение (пример неправильного исполнения)

Боковое подключение (пример неправильного исполнения).


Верхняя труба образует подъём (выше пунктирной линии на иллюстрациях), в котором стоит воздух. Циркуляция в приборе останавливается. Теоретически возможна эксплуатация при наличии в самой верхней точке трубы автоматического спускного клапана для воздуха (впрочем, они регулярно протекают) или крана Маевского.

Боковое подключение со смещённым байпасом (пример неправильного исполнения)

Боковое подключение со смещённым байпасом (пример неправильного исполнения).

Боковое подключение с зауженным байпасом (пример неправильного исполнения)

Боковое подключение с зауженным байпасом (пример неправильного исполнения).

Работоспособность бокового подключения при смещённом или зауженном байпасе и нижней подаче зависит от скорости циркуляции в стояке.

При малой или обычной скорости циркуляции прибор не работает, так как в нижнем отводе из-за смещения/заужения байпаса давление больше, чем в верхнем. Циркуляционный насос стремится подать воду через нижний отвод, а «гравитационный насос» внутри прибора стремится опустить охлаждающуюся в полотенцесушителе воду вниз. Взаимно противоположные потоки тормозят друг друга, и циркуляция останавливается.


Если стояк ещё не изувечен соседями, а в подвале стоит мощный циркуляционный насос, то бывает, что насос побеждает, и в приборе запускается круговая циркуляция. По левому коллектору горячая вода поднимается вверх, по правому остывающая вода опускается вниз, постепенно смешиваясь с горячей в левом коллекторе через горизонтальные перемычки. Однако стоит кому-нибудь поставить, например, варварский кран на байпас или подключить к стояку запрещённый тёплый пол – скорость циркуляции может упасть настолько, что полотенцесушитель перестанет работать. Либо будет работать нестабильно – в зависимости от времени суток и водоразбора из стояка.

Диагональное подключение в данной ситуации ничем не лучше бокового.

Нижнее подключение с зауженным байпасом (<b>пример неправильного исполнения

Нижнее подключение с зауженным байпасом (пример неправильного исполнения).


Одна из распространённых ошибок – ведь так заманчиво провести трубы в стяжке пола без утомительного штробления стен...

Подключённый с подобным нарушением прибор может работать только при очень хорошей скорости циркуляции в стояке. Но, как правило, такое подключение неработоспособно, потому что циркуляционному напору сначала нужно поднять воду из ямы вверх в прибор, а потом охладившуюся и более тяжёлую воду из той же ямы поднять вверх к отводу стояка.

Также в получившихся ямах будет скапливаться грязь из стояка. В дальнейшем при низком качестве воды можно получить забитые шламом трубы.


Часто задаваемые вопросы

Сантехник говорит, что холодный полотенцесушитель заработает, как только заселится больше жильцов или как только включат на полную мощность насос. Правда ли это?


Нет, неправда. Правильно подключённый прибор имеет температуру, равную температуре стояка минус 1-5°C, и работает всегда, когда сам стояк горячий.


Неправильно подключённый полотенцесушитель либо сразу не работает, либо работает в зависимости от времени суток, либо перестаёт греть через месяцы или годы при изменениях, никак не зависящих от владельца – например, из-за падения температуры теплоносителя или уменьшения скорости циркуляции.


Бывает, что неграмотно подключённый прибор прогревается только при интенсивном водоразборе, когда возрастает перепад давлений между отводами. Отсюда популярное оправдание: «Ну так жильцов мало, когда все въедут – тогда и заработает!». Но в исправной системе горячего водоснабжения всегда работает рециркуляция – непрерывное круглосуточное движение и подогрев воды в трубе стояка. Это не зависит от наличия жильцов и времени суток.


Стояк горячий? Если да – полотенцесушитель также обязан быть горячим!


От стояка до полотенцесушителя планируется пять поворотов, будет ли прибор работать?


Скорость движения воды в контуре полотенцесушителя довольно мала, поэтому повороты подводящих труб не оказывают заметного влияния на работу прибора.


Какой выбрать материал для подводящих труб?


В порядке убывания качества и долговечности:

  • Нержавеющая труба под пресс (например, Valtec VT.INOX-PRESS).
  • Труба из сшитого полиэтилена (TECE, REHAU, STOUT).
  • Труба из армированного полипропилена (чешские или немецкие: Ekoplastik, T3S, FV-Plast, Baenninger, Aquatherm или Wefatherm).

Мой полотенцесушитель не работает, а всё уже заложено плиткой. Хочу поставить на него насос – какой?  


Насос – Grundfos UP 15-14 или Wilo Star-Z Nova. Термостат накладной – PF TC 640.

Рекомендуется добавить защиту от сухого хода, например – термодатчик на стояк. Как только становится понятно, что прибор остыл ниже 30-40°C, то пора включать насос.


Какие водорозетки использовать для подключения полотенцесушителя: 1/2 или 3/4?


Для схем, работающих только на естественной циркуляции – то есть без заужения и/или смещения байпаса – желательно использовать водорозетки ¾ и исключить эксцентрики, заменив их на удлинённые ниппели или бочонки ¾. Это потребует особой тщательности установки, чтобы межцентровое расстояние водорозеток строго совпадало с выводами полотенцесушителя. У приборов «Сунержа» эксцентрики имеют весьма приличное внутреннее сечение.


«Американки» для подключения труб к стояку или к полотенцесушителю: какие выбрать?

Со стороны отводов стояка можно использовать шаровые краны сразу со встроенным полусгоном («американкой»). С трубами их следует соединять комбинированными муфтами с внутренней резьбой (для ППР). Если уже установлен обычный шаровой кран, то нужно использовать переход из полностью латунной конусной «американки» и ППР-муфты с резьбой.

Категорически не рекомендуется использование так называемых «комбинированных американок», у которых одна половина из пластика, а вторая – из латуни.


Шаровой кран с полусгоном («американка»)Муфта ППР комбинированная с внутренней резьбойМуфта ППР комбинированная с внутренней резьбойКомбинированная ППР-«американка» с плоской прокладкой (категорически не рекомендуется) 

При подключении к системе горячего водоснабжения такие «американки» постоянно текут, так как из-за повышенного коэффициента теплового расширения пластиковой части плоская прокладка между ней и ответной частью циклически сжимается при колебаниях температуры и становится тоньше, после чего начинается течь. Особенно часто это происходит после отключения горячей воды, то есть после уменьшения температуры всего стояка и после завершения температурных деформаций. Подтягивание накидной гайки либо не помогает вообще, либо помогает на непродолжительное время. 


Почему у меня работает полотенцесушитель, схема подключения которого указана в этой статье как нерабочая?


Отклонение от рекомендованных выше схем необязательно мгновенно прекращает работу полотенцесушителя. Например, если выполнено боковое подключение с зауженным байпасом и нижней подачей в стояке, то прибор может быть горячим, если в стояке заведомо большая скорость циркуляции или критично заужен байпас. 


Мой полотенцесушитель не работает, а всё уже заложено плиткой. Хочу поставить вместо него электрический полотенцесушитель – какой? 


Полотенцесушитель, как правило, должен работать круглосуточно, обеспечивая не только редкую сушку белья, но и комфортную температуру в ванной. 


Электрические полотенцесушители мощностью до 250 Вт, скорее всего, не смогут обеспечить полноценный обогрев ванной, но вполне справятся с сушкой белья. А вот более мощные модели (от 300 Вт) эффективно справляются с обеими задачами одновременно. 


  • Автор статьи: Непочатов Алексей Николаевич 

  • Редактура текста: ООО «Сунержа» 

  • Дата публикации: 16 августа 2019

  • Добавил santehnik63 https://santehnik63.ru



0

комментариев

3 202

просмотра

Похожие самоделки

Имя:*
E-Mail:


Песочница RSSРеклама на сайтеFreeseller.ru - Полезные самоделки
Copyright © 2008-2025